Umbau Gemeindezentrum Bättwil

Kindergarten Rodersdorf

Indem er sich an die Hangkante und in die Flucht der Schule stellt, schließt der Kindergarten den Hartplatz räumlich ab und vergrößert den Schulkomplex auf selbstverständliche Weise. Im Gegensatz zu dem Schulhausanbau mit orthogonalem Grundriss und aussen abgerundeten Ecken zeigt sich der Doppelkindergarten mit klarer Aussenform und spielerischen Formen im Innern. 

Die dem Hangverlauf folgenden Rampen und die abgerundeten Wände schaffen fließende und spannende Innenräume. Die in Ellipsenform erstellten Kerne mit WC-Anlagen, Technik und Gruppenräumen gliedern das Gebäude in zwei Haupträume und Erschliessung. Diese verbindet den Hartplatz mit dem Aussenraum des Kindergartens. Die auskragenden Vordächer und Aussenwände der Kerne thematisieren die innere Formensprache und Materialisierung und tragen das Konzept nach aussen.

Der schöne Baumbestand im Aussenraum ist erhalten worden und garantiert den sommerlichen Hitzeschutz. Der Spielplatz mit Kletterturm, Steinarena und Graben mit Kies- und Wasserflächen wirkt wie eine Burganlage mit Burggraben und lädt zum fantasievollen Spielen ein.

Situation

Erdgeschoss

Schnitt

Ansicht Nord

Anbau Schulhaus Rodersdorf

Die kompakte Erweiterung ist an der nördlichen Ecke der bestehenden Grundschule positioniert. Die Form ergibt sich einerseits aus der räumlichen Kontinuität des bestehenden Schulflurs und andererseits aus der Notwendigkeit von Gruppenräumen, die direkt an die Klassenzimmer anschließen. Der Erweiterungsbau bildet als Kopfbau den volumetrischen Abschluss und schafft eine räumliche Verbindung zu der Sporthalle. Zwischen beiden erstreckt sich der überdachte Pausenhof.

Das Raumprogramm umfasst zwei Klassenzimmer mit vier Gruppenräumen sowie im Untergeschoss Mehrzweckraum und textiles Werken mit Materialraum. Die den Korridor füllenden Einbauten des bestehenden Schulgebäudes wurden entfernt, um den Zugang zum Erweiterungsbau zu gewährleisten. Der breite, multifunktionale und gut belichtete Flur öffnet sich zum Pausenplatz. Die Sitznischen in den Gangmöbeln dienen als Rückzugsort und Lernraum für die SchülerInnen. 

Die lärm- und schmutzintensiven Arbeiten am Bestand konnten in den Sommerferien ausgeführt werden, die restlichen Arbeiten unter laufendem Schulbetrieb. Die Bauweise ist sehr umweltfreundlich und nachhaltig. Die Außenwände des Kellers und die Bodenplatte sind aus recyceltem Beton erstellt. Bereits die Decke über dem Keller ist wie die oberen Stockwerke mit vorgefertigten Holzelementen ausgeführt. Die Außenverkleidung besteht aus vertikalen Lamellen und Brettern, die Innenverkleidung aus grossflächigen Sperrholzplatten.

Situation

Erdgeschoss

Obergeschoss

Untergeschoss

Schnitt

Ansicht West

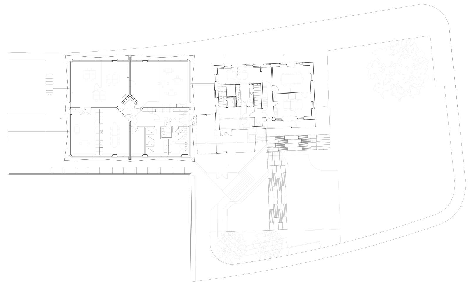
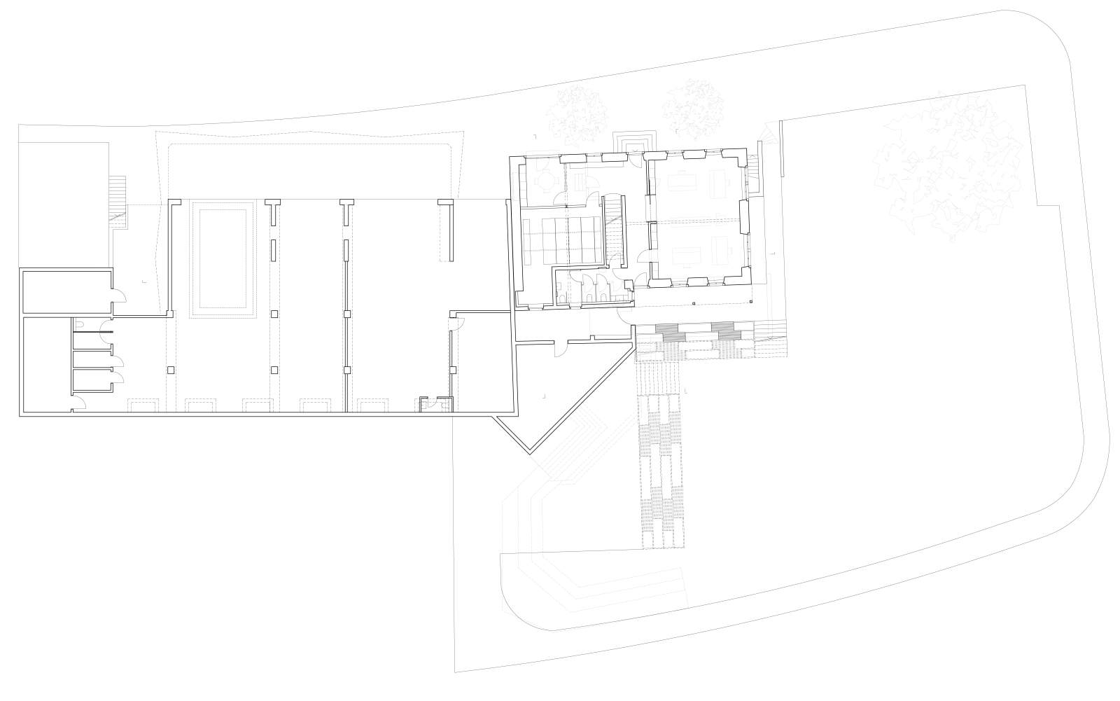
Umbau Gemeindezentrum Bättwil

Das Gemeindezentrum besteht aus dem alten Schulhaus am Bahnweg, erstellt zu Beginn des 20. Jahrhunderts, und dem neueren Schulhaus mit Werkhof von 1994 an der Rebenstrasse. Die gemeindeeigenen Nutzungen sind neu verteilt worden. Das repräsentative ortsbildtypische Gebäude mit Satteldach beherbergt die Verwaltung von Bättwil. Das Dachgeschoss ist zum Gemeindesaal ausgebaut. Im ehemaligen Schulhaus mit Flachdach befinden sich Kindergarten und Spielgruppe.

Der Zugang zur Verwaltung erfolgt vom Bahnweg auf der Gebäudevorderseite, behindertengerecht neu auch über die Rückseite. Im Erdgeschoss sind Schalter, Büros, Archiv und WC-Anlagen untergebracht. Im Obergeschoss finden sich Multifunktionsräume wie Besprechungszimmer in der bestehenden Struktur. Im westlichen Gebäudeteil ist der Boden auf dasselbe Niveau angehoben, damit der behindertengerechte Zugang zu den öffentlichen Räumen gewährleistet ist. Die Dachkonstruktion bleibt erhalten, die Lastabtragung erfolgt über neue Decken und Wände in Holzelementbauweise. Darin befinden sich Foyer, Küche, Lager, Lift und Treppe, die zum Saal im Dachgeschoss führen. Die Überhöhe des Foyers und die Verglasung zum Saal schaffen eine starke räumliche Verbindung. Die grosse neue Öffnung zum Platz hin markiert den Zugang zum Saal von der Rebenstrasse und betont den öffentlichen Charakter des Gebäudes. Der Saal wird über grossformatige Öffnungen an den Giebelfassaden und ein Oblichtband auf der Nordseite belichtet. Ansonsten ist das äussere Erscheinungsbild weitgehend erhalten geblieben. Die energetische Sanierung beinhaltet den Ersatz aller Fenster, die Dämmung der Dachflächen sowie der Aussenwände und Böden gegen Erdreich wo sinnvoll.

Das Obergeschoss des neueren Schulhauses ist auf die Grundstruktur zurückgeführt, die im Laufe der Zeit eingebauten Unterteilungen sind entfernt. Die WC-Anlagen sind umplatziert und vergrössert, da sie nun auch von den Saalbesuchern genutzt werden. Dadurch hat sich die Eingangssituation und die Verbindung zum Gebäude am Bahnweg verbessert. Die energetische Sanierung des Daches und der Fassaden bietet die Möglichkeit, den unbefriedigenden gestalterischen Ausdrucks des Gebäudes zu verbessern. Die Dach- und Fassadenvorsprünge sind entfernt. Eine textile geknickte Fassadenhaut überspannt Mauerwerk und Fenster und schafft ein spannendes und reduziertes Erscheinungsbild, das sich klar vom historischen Gebäude unterscheidet und sich diesem unterordnet. Das gedeckte Vordach aus Sichtbeton verbindet die beiden Gebäude und markiert die Zugänge zu Kindergarten und zum öffentlichen Gemeindesaal. Der grosszügige Vorplatz zur Rebenstrasse ist multifunktionell gestaltet und steht für öffentliche Anlässe aller Art zur Verfügung.

Situation

Erdgeschoss

Obergeschoss

Dachgeschoss

Längsschnitt

Ansicht Süd

Querschnitt

Ansicht Ost

Ansicht Nord

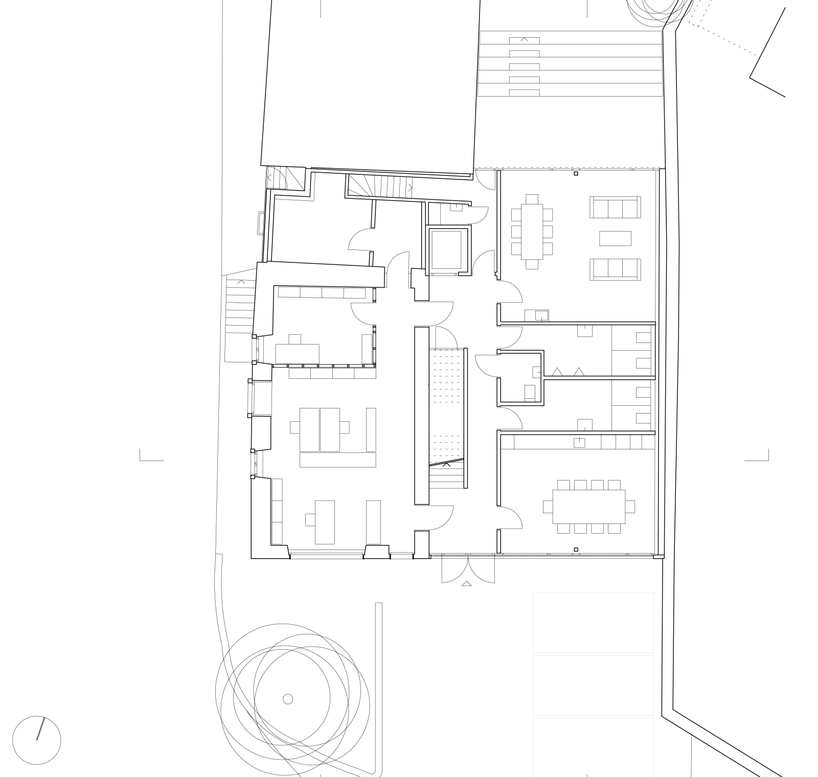
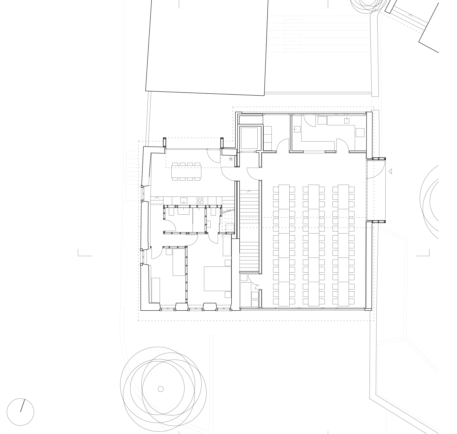
Umbau Allmendhaus Basel

Das im Jahr 1970 an der Allmendstrasse gebaute Kirchgemeindehaus besteht aus zwei oberirdischen Geschossen mit Flachdach und zwei Untergeschossen. Zusammen mit der Kirche St. Michael und dem Pfarrhaus fasst es einen zentralen Platz, unter dem sich ein grosszügiger Saal befindet. Ein Versatz staffelt das Volumen, welches zusätzlich durch ein umlaufendes, feines Betonvordach akzentuiert wird. Die Bauweise ist massiv, mit gemauerten respektive betonierten Wänden und Stahlbetondecken. Neben der notwendigen energetischen Sanierung sind die Innenräume in sicherheits- und brandschutztechnischer, aber auch in gestalterischer Hinsicht optimiert worden. Das Haus wird von einem konfessionsfreien Verein als Quartierzentrum betrieben, jedoch auch weiterhin von der Katholischen Kirche als Eigentümerin genutzt.

Die Vergrösserung des Foyers in Richtung Platz sowie der farbig akzentuierte Lichthof als zentralem Eingriff schaffen eine lichte und angenehme Atmosphäre im Eingangsbereich. Die rohen Sichtbetonflächen mit Bretterschalung sowie die Böden mit Terrazzoplatten konnten erhalten werden und huldigen dem Geist der Erstellungszeit. Zur besseren Orientierung ist die Treppe ins Obergeschoss gedreht worden, sodass die Erschliessung aller Nutzungen nun über das zentrale Foyer erfolgt. Durch die Öffnung des Gangs im Obergeschoss zum Lichthof entsteht zudem eine starke räumliche Verbindung zum Eingangsbereich und zur Treppenanlage. Diese führt in das dem Saal vorgelagerte Foyer im Untergeschoss. Die neue verglaste Front gibt den Blick in den Saal frei, wo zwei identisch dem Lichthof materialisierte Öffnungen im Dach viel Licht in den unterteilbaren und vielfältig nutzbaren Raum bringen.

Der Aussenplatz ist einheitlich materialisiert und wird nur durch die Oblichter gegliedert. Ein Schopf mit Betondach und zwei Holzverschlägen schliesst den Platz räumlich gegen das Altersheim hin ab. Durch den weitestgehenden Erhalt der bestehenden Bausubstanz ist ein sehr nachhaltiges Projekt, mit einem Minimum an Abfallproduktion und einem schonungsvollen Umgang mit Ressourcen, realisiert worden.

Situation

Erdgeschoss

Obergeschoss

1. Untergeschoss

2. Untergeschoss

Ansicht Nord

Schnitt

Anbau Schulhaus Witterswil

Schulreform und neue Unterrichtsformen bedingen eine Erweiterung des Primarschulhauses, gefordert sind vorwiegend Gruppenräume. Das Schulhaus wird aus funktionellen Gründen auf zwei Seiten erweitert. Damit erhalten die meisten Klassenzimmer einen direkt zugänglichen Gruppenraum, der gut vom Klassenzimmer einsehbar ist. Mit dem Anbau Süd wird das Gebäude auf dieser Seite geschlossen, der Gang führt nicht mehr an die Fassade. Die Gruppenräume sind komplett verglast, damit Licht wie durch einen sich nach aussen öffnenden Lichtkörper ins Innere gelangt. Aussenräumlich bildet der südliche Anbau den Abschluss des Gebäudes zum in den Ortskern führenden Fussweg. Eine Abschrägung des Baukörpers entschärft die nahe Ecke zum Fussweg und lässt ihn als Kopfbau erscheinen. Der nördliche Anbau hingegen lässt den Gangbereich offen, damit eine zukünftige Erweiterung möglich bleibt.

Gruppenräume sind deutlich kleiner als Klassenräume, werden anders genutzt und verlangen nach einer anderen Raumproportion und Belichtung. Die bestehende Putzfassade mit Lochfenstern wird deshalb nur partiell weitergeführt. Stattdessen erhalten die Anbauten geknickte Fassadenverläufe und eine nichttragende Fassade aus Glas und Holz. Die formale und materielle Differenzierung der Anbauten führt zu einem ausgewogenen Verhältnis von «harter» und «weicher» Fassade und bricht die monumentale Erscheinung des langen Baukörpers. Für die Strukturierung und Beschattung der Fassade werden vertikale Lamellen aus Lärchenholz verwendet. Sie sind unregelmässig gesetzt, laufen jeweils vor den Fenster- und Fassadenelementen durch und überspielen geschickt die Deckenstirnen. Die Anbauten gewinnen so an Homogenität und Ausdruckskraft. Ein Teil des nördlichen Anbaus wird in Struktur und Gestaltung den vorhandenen Klassenzimmern angepasst. Die sich darin befindenden Gruppenräume können jederzeit zugunsten eines Klassenzimmers pro Geschoss aufgehoben werden.

Situation

Erdgeschoss

Obergeschoss

Untergeschoss

Schnitt a-a

Fassade Süd

Schnitt b-b

Fassade West

Umbau Pfarreizentrum Hofstetten

Bei der Liegenschaft der Kirchgemeinde handelt es sich um ein ehemaliges Bauernhaus, bestehend aus Wohn- und Ökonomieteil aus dem 19. Jahrhundert. Sie steht mit ihrer östlichen Fassade direkt an der historischen Kirchenmauer und bietet somit optimale Voraussetzungen, das Kirchenareal als Pfarreizentrum zu ergänzen. Das Raumprogramm umfasst einen 90 m2 grossen Pfarreisaal mit Küche und Lagerraum, einen Sitzungsraum, Lokalitäten für die Jubla, Büros und eine Wohnung.

Ein Saal dieser Grösse erfordert einen grossen Eingriff in die Gebäudestruktur. Der Mitte des 20. Jahrhunderts anstelle des ehemaligen Ökonomiegebäudes erstellte Massivbau musste abgebrochen werden und bietet in seiner neuen Form Platz für den Saal auf dem Niveau des Kirchenplatzes und weitere grössere Räume im Erdgeschoss. Die neue Fassade aus Glas und Holz soll wieder die ursprüngliche Teilung des Gebäudes in Wohn- und Ökonomieteil hervorheben.  Im ehemaligen Wohnhaus sind die Geschosshöhen auf zeitgemässe Masse angehoben, das ursprüngliche Fassadenbild wurde dabei weitgehend beibehalten. In Absprache mit der kantonalen Denkmalpflege war es auch möglich, den Saal durch die historische Kirchenmauer zum Kirchenplatz hin zu öffnen. Der mit Kupfer eingefasste Rahmen, welcher die Mauer durchstösst, findet sich rings ums Gebäude bei allen neuen Öffnungen wieder.  Die Nutzungen sind im Gebäude klar verteilt: die kleinteiligeren, privateren Räume (Büros und Wohnung) finden sich im ursprünglichen Wohnhaus wieder, die grösseren, öffentlichen Räume (Mehrzweck-, Jubla-Raum und Saal) bekamen ihren Platz in den grösseren, höheren Räumen des neuen Ökonomieteils. Das Treppenhaus befindet sich an der Schnittstelle der beiden Gebäudeteile und kann von dort alle Nutzungen erschliessen.

Auch die Materialisierung im Gebäude soll die Gliederung in Wohn- und Ökonomieteil unterstützen. Den traditionellen Eichenparkettböden und Weissputzwänden im ehemaligen Wohnhaus stehen im ehemaligen Scheunenteil Hartbetonböden, grober Kalkputz und Sperrholzoberflächen gegenüber. Die Holzverschalung des Scheunenteils soll einerseits flächig wirken und andererseits genügend Lichteinfall in die dahinterliegenden Räume zulassen. Ein in den Dorfkernen häufig wieder­kehrendes Motiv sind Bretterschalungen, welche über ornamentale, seitliche Ausschnitte ein gewisses Mass an Licht und Luft in die dahinter liegenden Räume lassen. Dieses Motiv wird mit der Fassade des Pfarrei­zentrums aufgegriffen und so weiterentwickelt, dass die Bretterschalung eine befriedigende Belichtung der Räume zulässt.

Situation

Erdgeschoss

Obergeschoss

Dachgeschoss

Schnitt a-a

Fassade West

Schnitt b-b

Fassade Süd

Schnitt c-c

Fassade Ost

Garderobengebäude Chöpfli Hofstetten

Das Garderobengebäude für den Sportplatz Chöpfli ist auf der freien Wiese zwischen bestehendem Parkplatz und Wald platziert und besteht aus zwei zueinander verschobenen Baukörpern. Dies erlaubt es, auf verschiedene Besonderheiten der Situation zu reagieren. Einerseits werden sowohl der Zugang vom Parkplatz als auch die Ausrichtung zu den Spielfeldern überzeugend gelöst und andererseits können die Niveauunterschiede des Terrains aufgenommen werden. Der Sockel verbindet das Ensemble zu einer Einheit und schafft zwei hochwertige Aussenräume.

Durch die beiden Vordächer entsteht eine witterungsgeschützte Zone, von welcher die Räumlichkeiten je nach Bedarf einzeln erschlossen werden können. Im tieferen Gebäudeteil sind vier Garderobeneinheiten, Schiedsrichtergarderobe und Technikraum angeordnet, im höheren finden Aufenthaltsraum mit Teeküche, WC-Anlagen und Lagerraum Platz.

Die Materialwahl unterstützt das räumliche Konzept und thematisiert die pragmatische Nutzung als Garderobengebäude. Die raumhaltigen Holzelementbauten mit Aussenverkleidung aus Dreischichtplatten werden von einer harten Schutzhülle aus Beton umfasst, die vom Sockel über die Aussenseite der jeweiligen Baukörper bis zu den Dächern reicht. Die Betonaussenwände sind konsequenterweise öffnungsfrei ausgeführt, Oblichter versorgen die Räume mit viel Tageslicht.

Die Bekleidung der Innenwände und Decken besteht aus naturbelassenen OSB-Platten, die Unterlagsböden sind als Fertigbelag ausgeführt. In den Duschräumen sind die Oberflächen mit verschiedenfarbigen Steinzeugplatten versehen. Das Gebäude ist in Minergie-Bauweise erstellt, mit Komfortlüftungen und thermischer Solaranlage ausgestattet.

Erdgeschoss

Fassade Süd

Schnitt

Fassade West

Umbau Evang.-Ref. Kirche Breitenbach

Das ursprünglich als Kino erbaute Gebäude ist zu einem lebendigen, adäquaten Zentrum der reformierten Kirchgemeinde Thierstein umgestaltet worden. Durch den Abbruch des Kassenhäuschen vermittelt das Foyer einen grosszügigen und übersichtlichen Eindruck. Mit drei wesentlichen räumlichen Eingriffen im Gottesdienstraum ist ein sakraler Ort der Ruhe, der Besinnung und der Feierlichkeit entstanden.

Im oberen Bereich der Westwand öffnet sich der Raum gegen den Himmel. Schräg zueinander gesetzte Glasscheiben füllen den Raum mit farbigem Licht und erzeugen je nach Tageszeit unterschiedliche Stimmungen. Auf der Ostseite gegen den Garten hin ist das Erdgeschoss vollständig verglast, um eine starke Verflechtung des Innenraumes mit der Natur zu erreichen. Der angebaute Andachtsraum auf der Südseite bildet mit seiner sich öffnenden Geometrie eine räumliche Erweiterung des fliessenden Hauptraumes und findet seinen Abschluss in einer umlaufenden Hofmauer aus Beton. Mit Sicht zum Gottesdienstraum sind davor ein Wasserbecken mit Sitzgelegenheit und ein Betonkreuz angeordnet.

Für die optische Abtrennung der Empore sowie als Blendschutz und Abdunkelung bei den grossen Öffnungen sind dunkle Vorhänge verwendet worden, die auch als Reminiszenz an die ursprüngliche Nutzung als Kino zu verstehen sind. Die Materialisierung mit weissen Wänden und Decken, dunkelgrauem Schieferboden und Möbeln aus Ahorn ist reduziert und möglichst neutral gehalten.

Erdgeschoss

Obergeschoss

Längsschnitt

-->