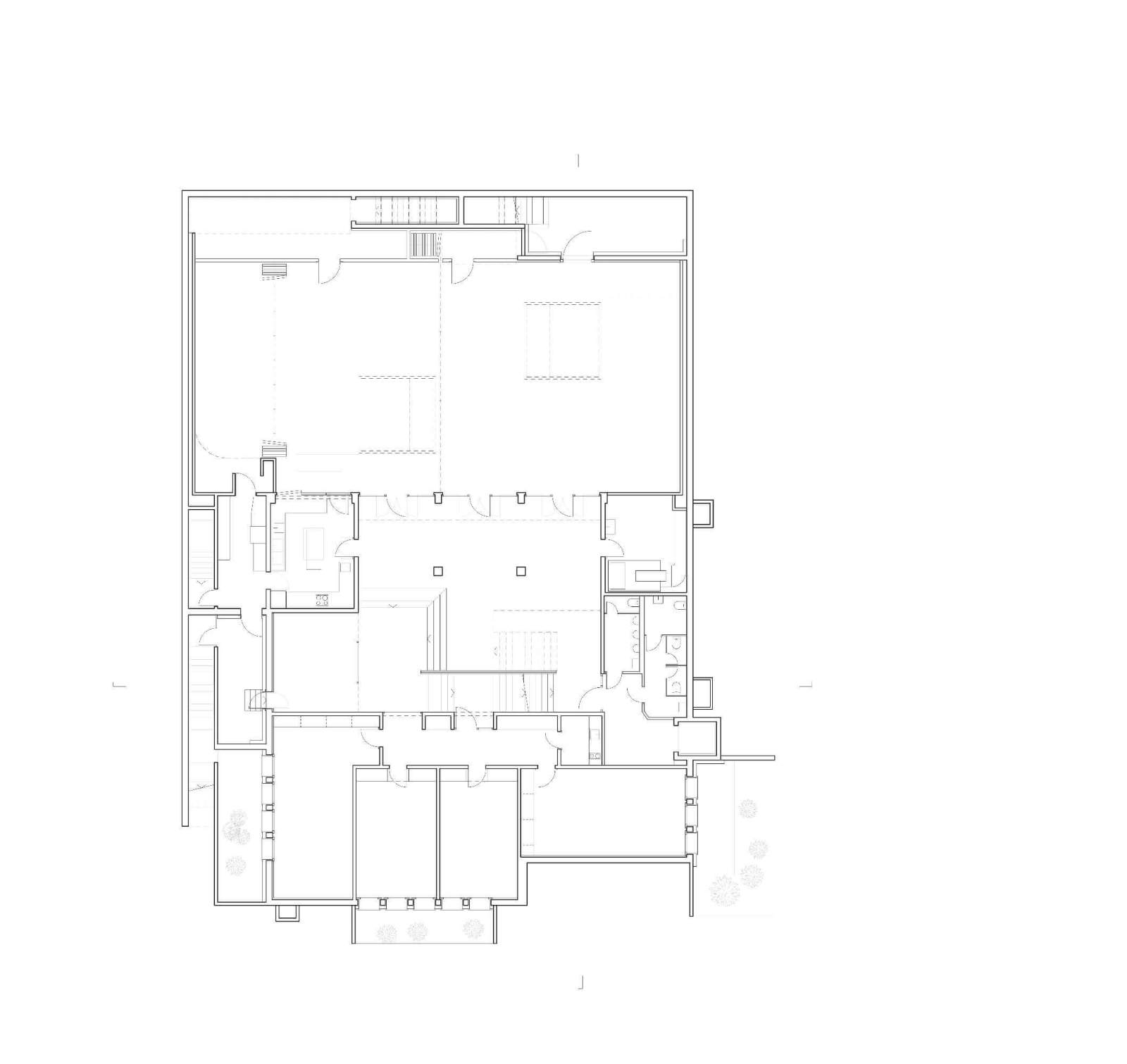
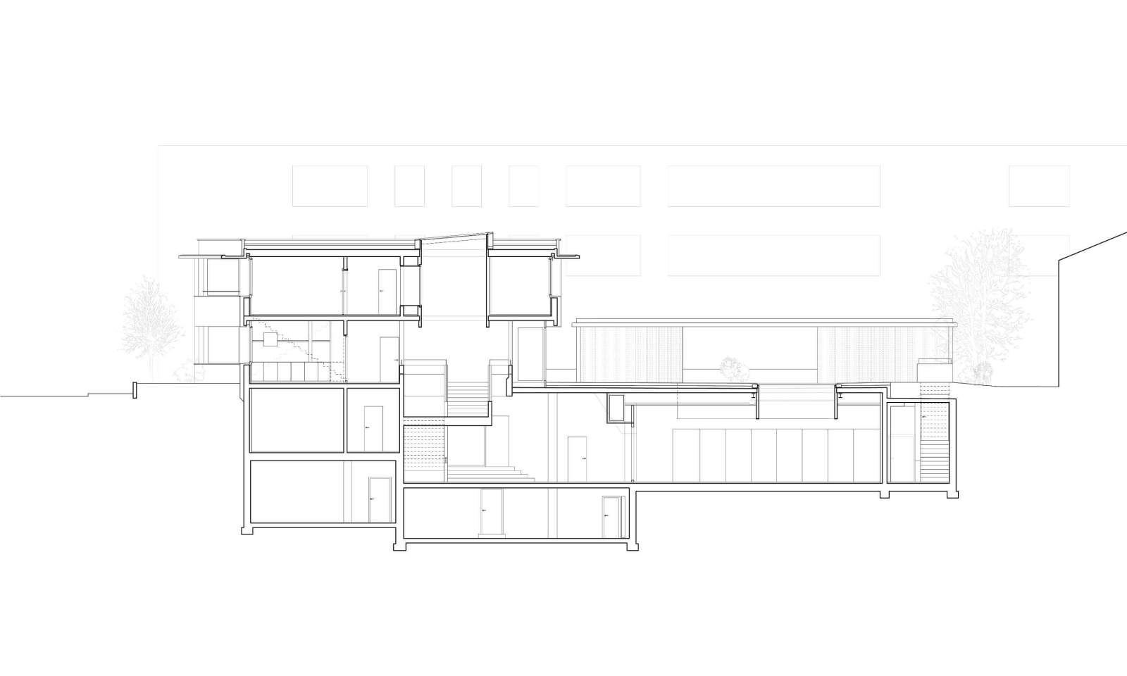
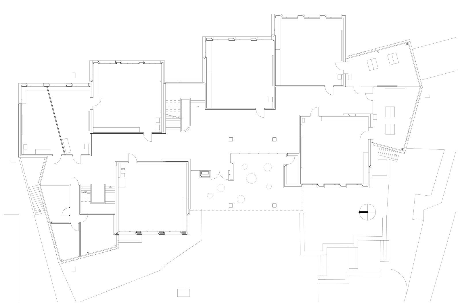
Das ehemalige Bauernhaus aus dem 19. Jahrhundert steht am Rande des Dorfkerns. Das Gebäude ist charakterisiert durch die klassische Gliederung in Wohn- und Ökonomieteil, wobei die sehr schmale Scheune im Verlaufe der Zeit durch einen Anbau mit Pultdach erweitert worden ist. Das Raumangebot sollte um zwei Zimmer erweitert werden, wofür ein Zwischenboden in der Scheune abgebrochen wurde. Isolierte und beheizte Boxen beherbergen die neuen Zimmer und den Gang mit rahmenloser Verglasung. Eine neue Öffnung in der Bruchsteinmauer verbindet diesen mit dem Obergeschoss des Wohnhauses. Die Tragstruktur und die Erlebbarkeit des hohen typischen Scheunenraumes sind möglichst erhalten worden. Der Zwischenklimaraum ist von innen winddicht verschlossen und strassenseitig, im Bereich des Scheunentores, vollständig verglast. Die Räume im Erdgeschoss werden als Atelier genutzt. Die begehbare Decke über dem Einbau dient als Pflanzendeck. Eine grosszügige Öffnung im Dachgeschoss des Wohnhauses erschliesst dieses und erweitert den Wohnraum optisch.
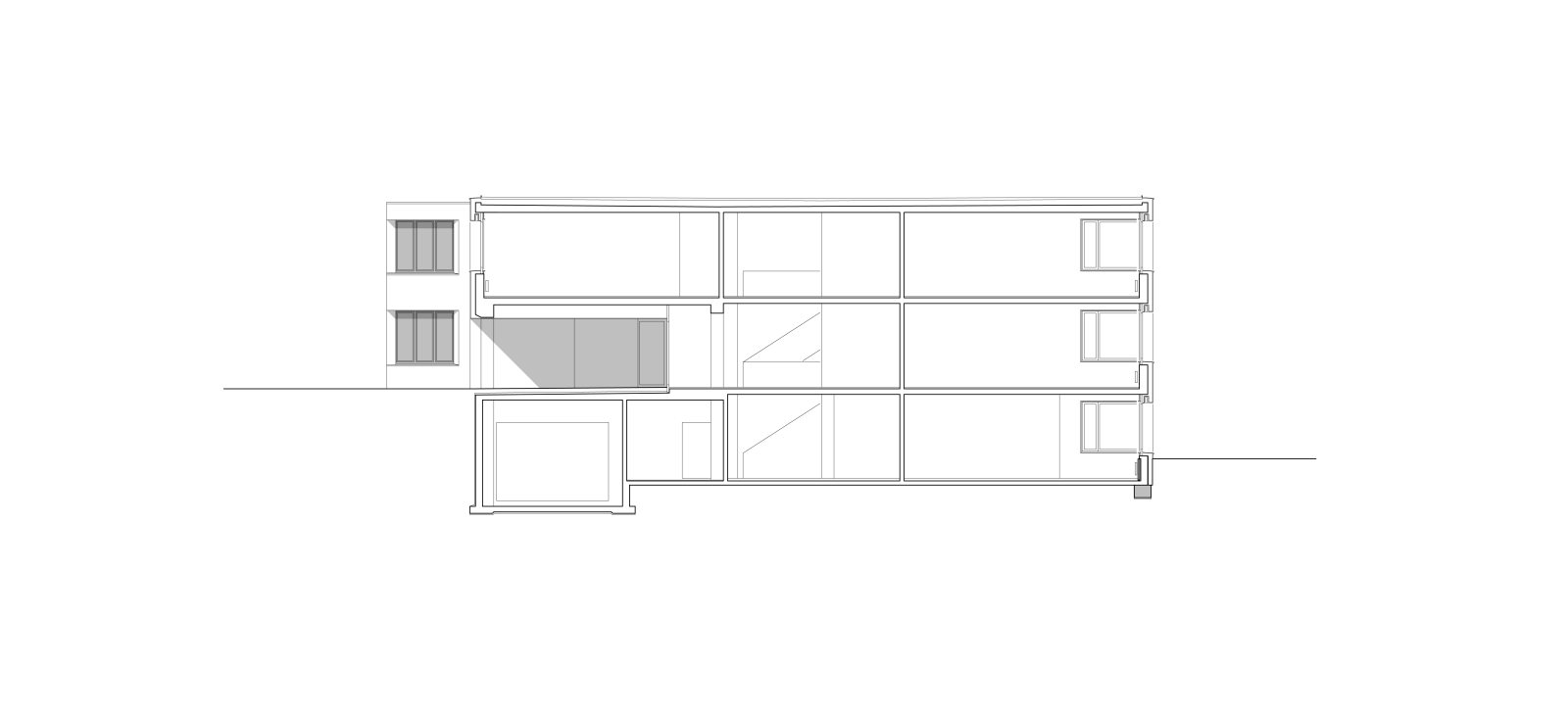
Da die bestehenden, ehemals für die Anlieferung der landwirtschaftlichen Güter und Maschinen benötigten, Klappläden und Tore allesamt erhalten werden konnten, ist der Ausbau im geschlossenen Zustand nicht erkennbar. Umso grösser ist die Überraschung für Passanten, wenn der Eigentümer Tageslicht für seine kunsthandwerklichen Tätigkeiten benötigt und die Tore öffnet. Er gewährt somit Einblicke in sein Werken, aber auch in das räumliche Zusammenspiel von alten Strukturen und neuen Einbauten.
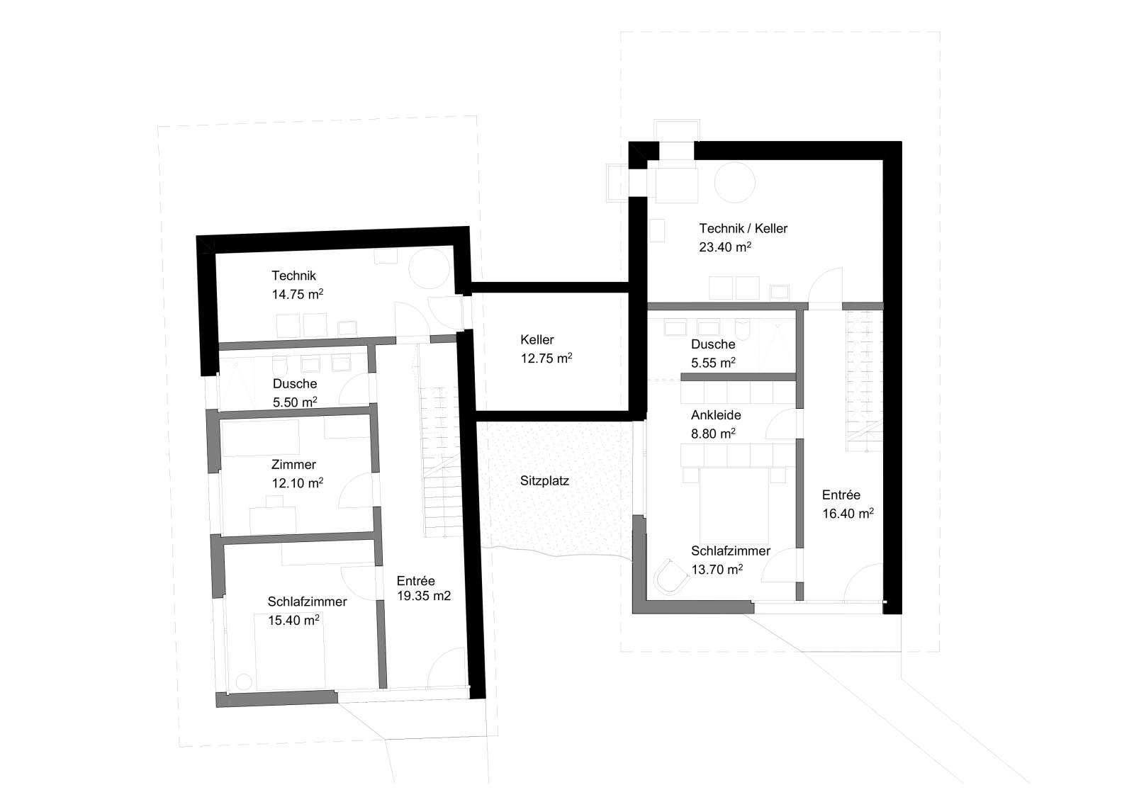
Die baulichen Eingriffe im Wohnhaus beschränken sich auf die Nassräume und die Küche. Das bestehende Bad im Obergeschoss wird in zwei Duschen aufgeteilt, damit eine direkt vom Schlafzimmer und eine vom Gang und den zusätzlichen Zimmern erschlossen werden kann. Die Küche erhält einen direkten Zugang zum Garten und wird zum Esszimmer hin maximal geöffnet. Bei der Konstruktion der Boxen handelt es sich um vorfabrizierte Holzrahmenbauten, welche aussen mit OSB-Platten verkleidet und dunkel gestrichen sind. Alle Oberflächen und Türen innen sind mit Sperrholzplatten ausgeführt, die Böden aus dunkel eingefärbtem Unterlagsboden.
















































































