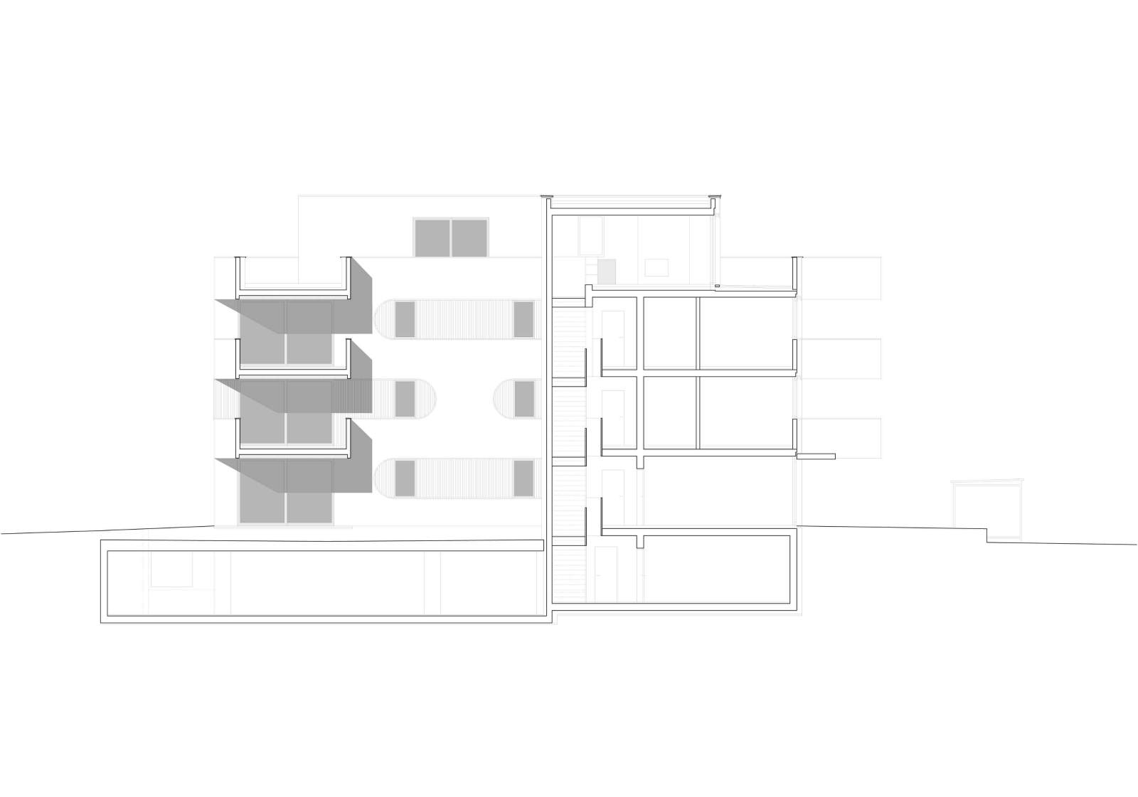
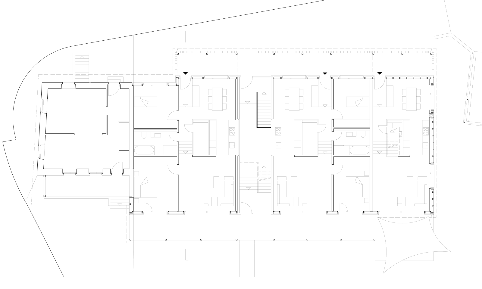
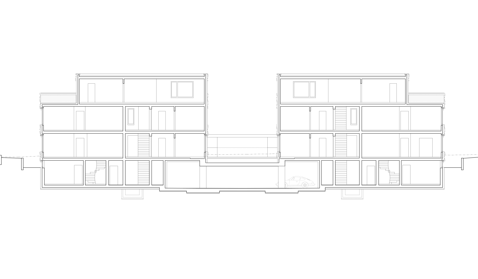
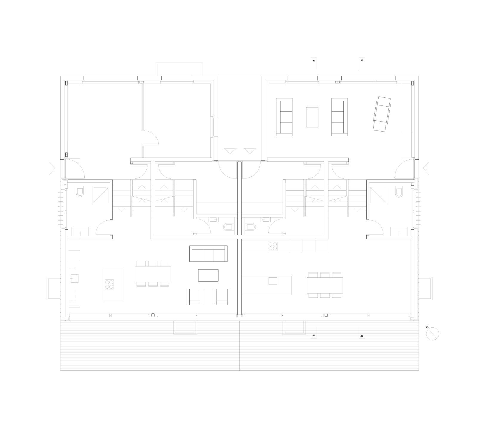
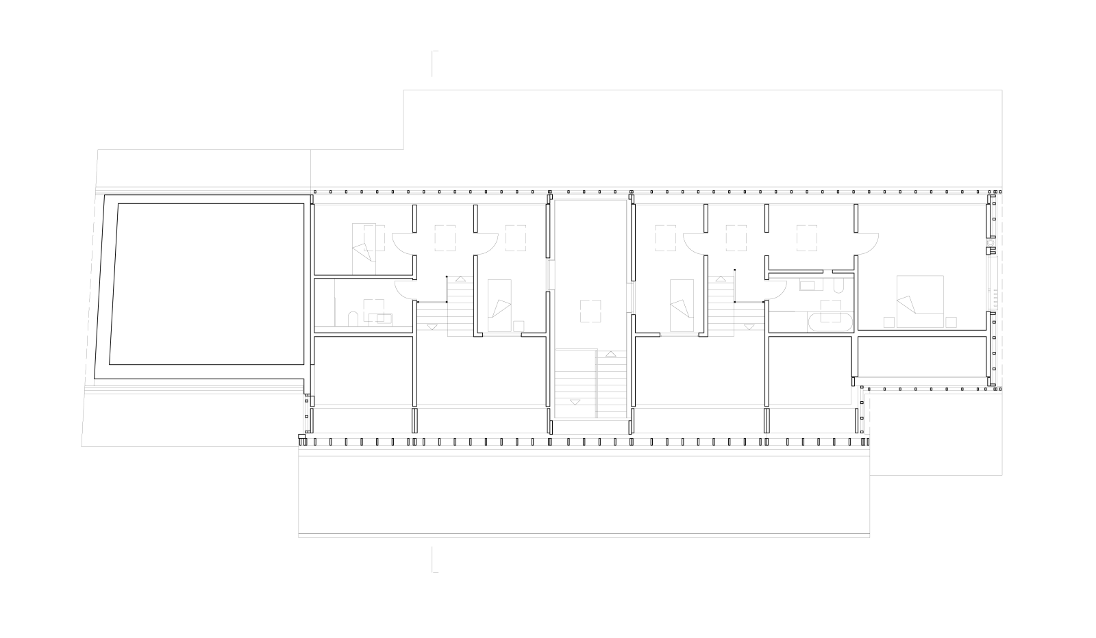
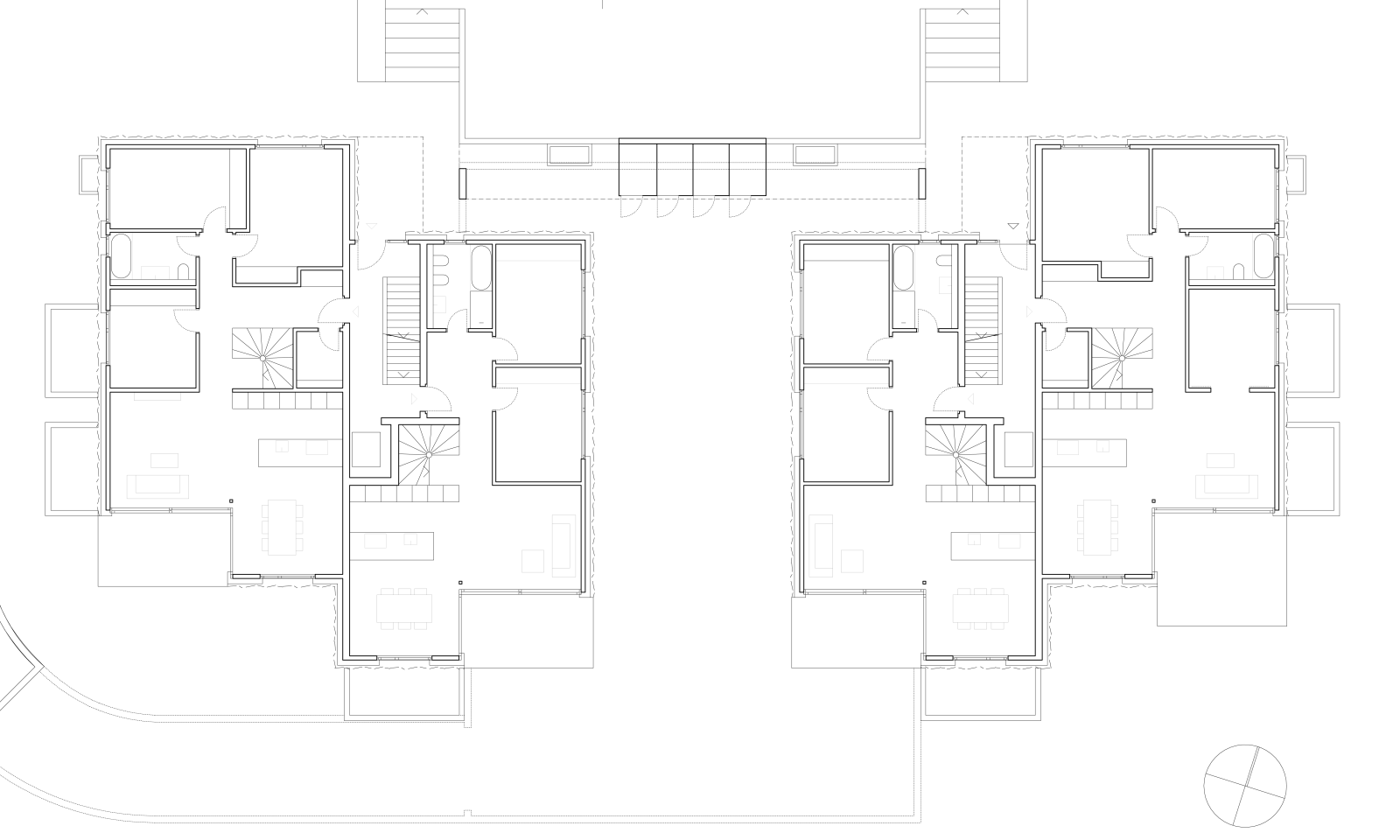
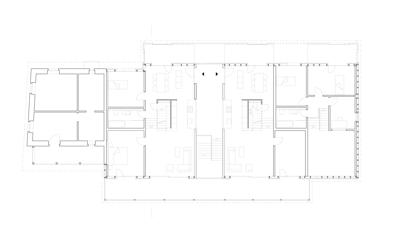
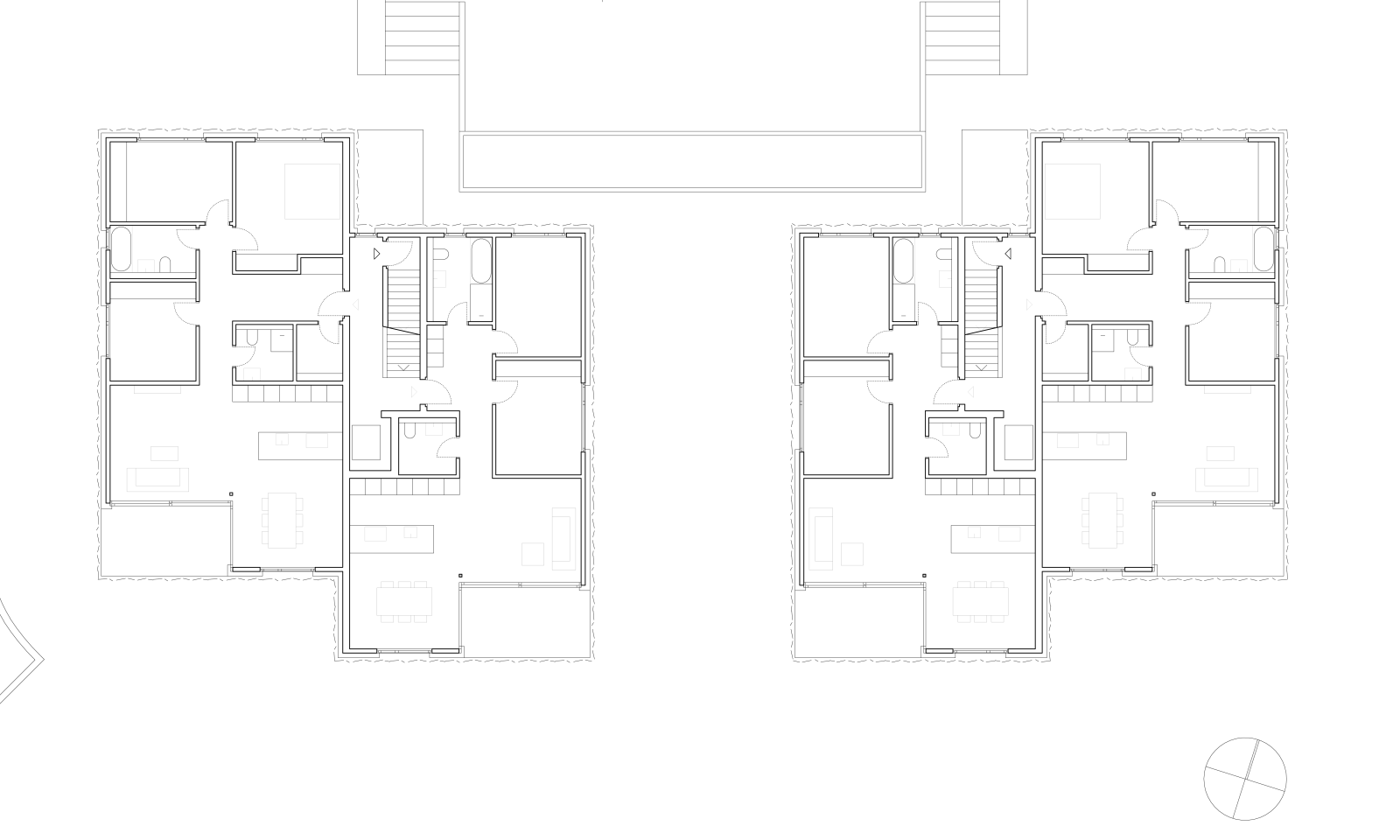
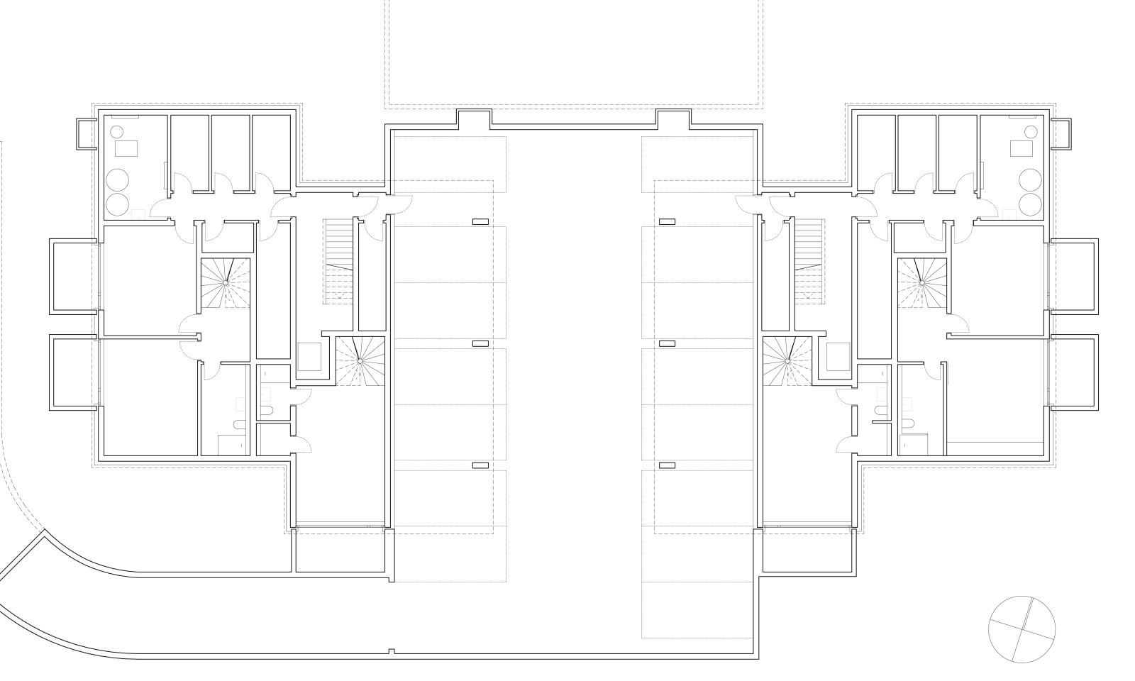
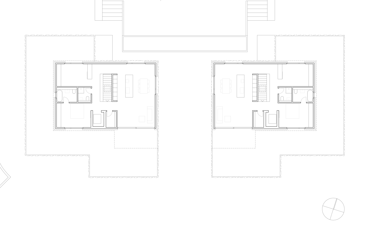
Die beiden Wohnbauten sind durch vor- und rückspringende Gebäudeteile gegliedert. Dadurch fügen sie sich geschickt in die kleinteilige Morphologie des Quartiers ein. Lochfenster und eingezogene Balkone gliedern die Fassaden. Die beiden Gebäude stehen mit ihrer Stirnseite leicht versetzt zum Hegenheimermattweg. Pro Vollgeschoss sind drei bis vier Wohnungen unterschiedlicher Grösse angeordnet, so dass ein vielfältiger Wohnungsmix entsteht. Sämtliche Wohnungen sind in einen Tag-, Nachtbereich gegliedert, mit offenem Wohn-, Ess- und Kochbereich und eine über einen Gangbereich erreichbare Zimmerschicht.
Die beiden Wohnhäuser sind mit einem feinen Abrieb in unterschiedlichen Erdfarbtönen verputzt. Aufgrund der ähnlichen Gliederung der Volumen und der aufeinander abgestimmten Fassadenfarben erkennt man die beiden Häuser zwar als Einheit, nimmt sie gleichzeitig aber auch individuell wahr. Der Putz wird mit glitzernden Partikel und Steinchen angereichert. Bei Sonneneinstrahlung wird der Effekt sichtbar und unterstützt das durch die Vor- und Rücksprünge der Fassade thematisierte Spiel von Licht und Schatten.
Fenster, Balkongeländer und Wandflächen in den eingeschnittenen Balkonen sind in Metall farblich einheitlich auf die beiden erdfarbigen Fassaden abgestimmt. Die Balkongeländer sind mit speziell gestanzten Blechen verkleidet, welche im angrenzenden Bereich auch als Absturzsicherung über die geschosshohen Fenster gezogen sind.








































































































































