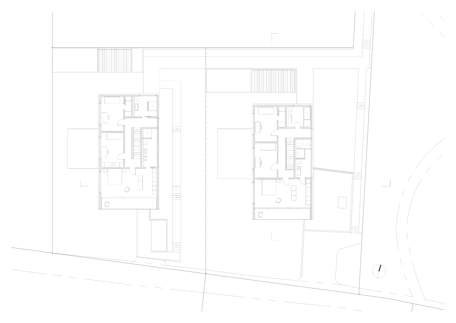
Häuser Auf den Felsen Hofstetten

Haus Büneweg Hofstetten

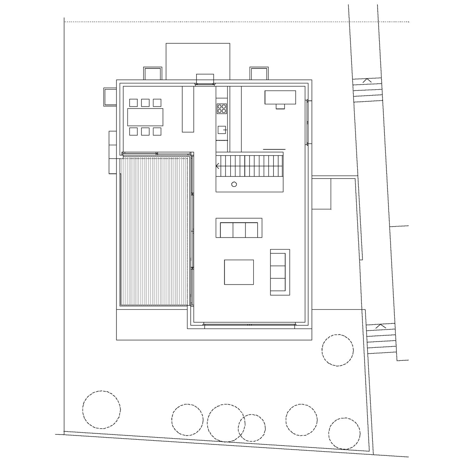
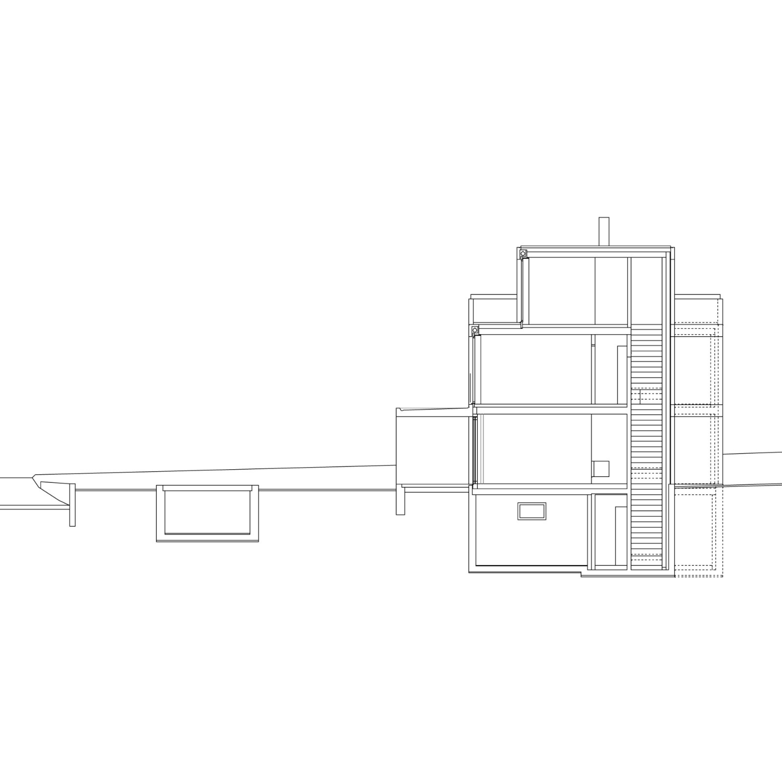
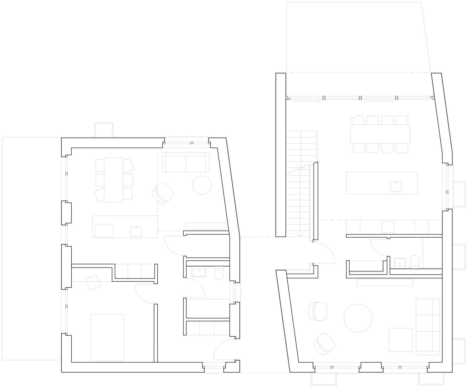
Der Ersatzneubau eines Wohnhauses mit Scheune befindet sich im Ortskern von Hofstetten. An Stelle des baufälligen Gebäudes tritt ein zweigeschossiges Haus mit Einliegerwohnung. Der Zugang erfolgt einerseits vom Ortskern her, andererseits rückwärtig über den langgezogenen Garten, wo sich an der Strasse ein Autounterstand mit Geräteraum befindet.

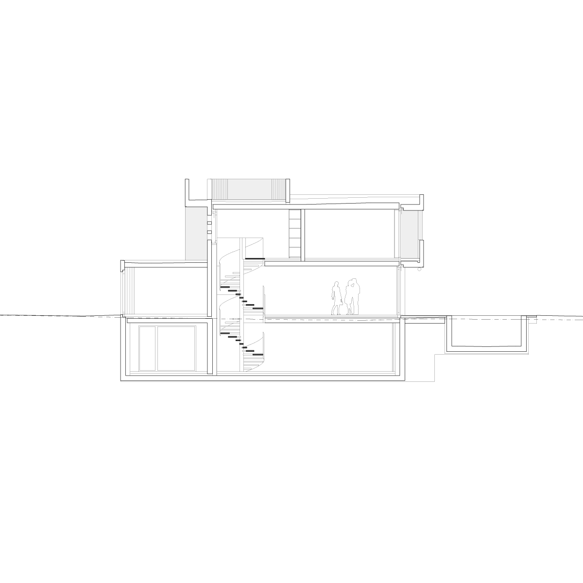
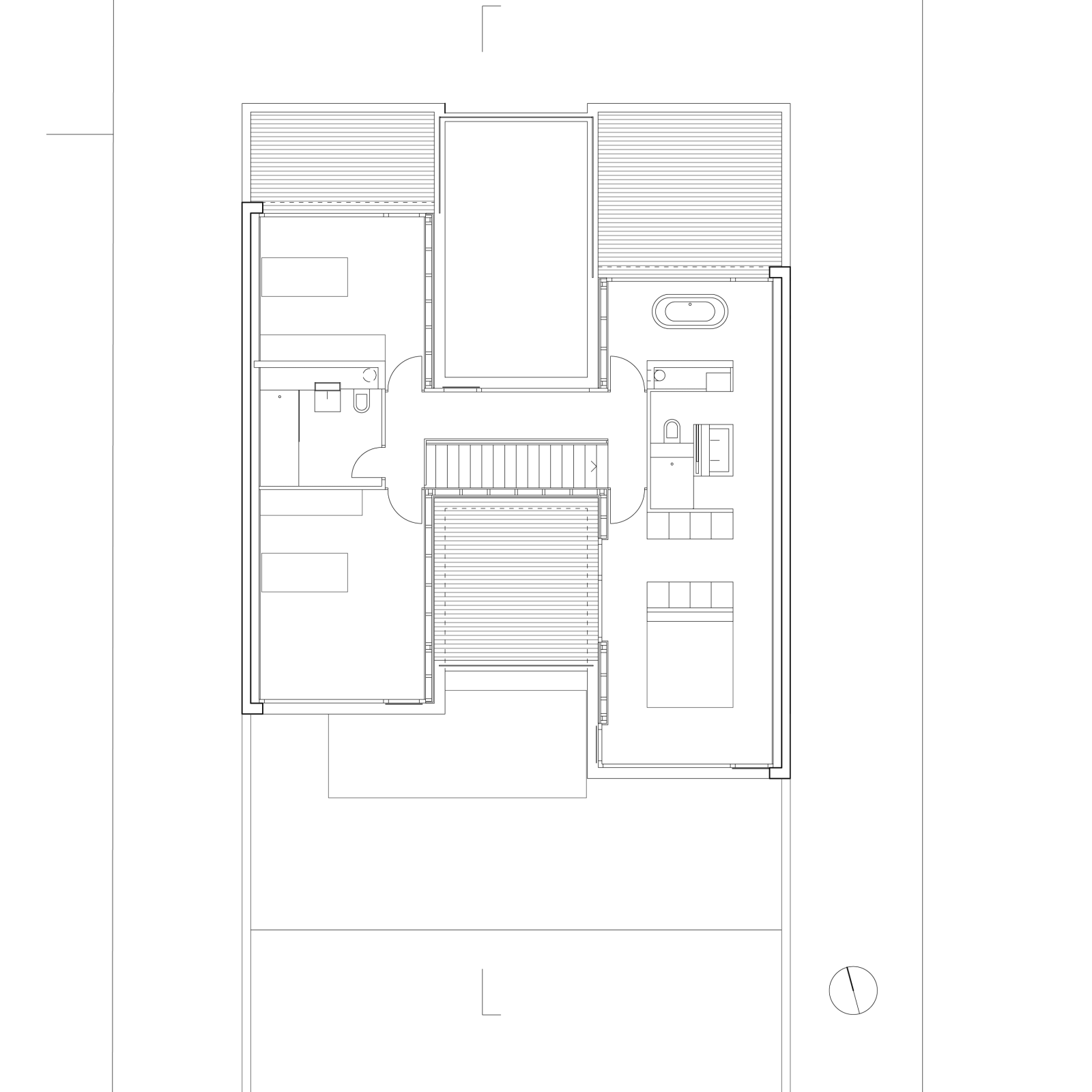
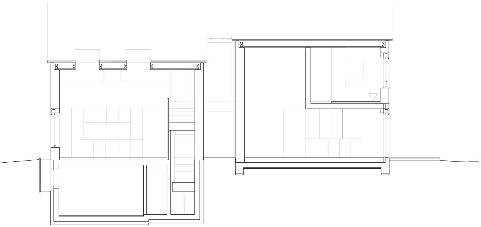
Der Ersatzbau übernimmt weitgehend Dachform und Fassadenfluchten des Bestandsbaus. Einzig die nordseitigen, mit flacherem Dach versehenen, Anbauten werden zugunsten einer besseren Belichtung eingekürzt. Ein offener Durchgang im Erdgeschoss verbindet den Garten im Norden mit dem Vorgarten im Süden und bietet einen gedeckten Zugang für die Wohnungen. Er befindet sich an der Schnittstelle von ehemaligem Wohnhaus und Scheune und wird akzentuiert durch den Einschnitt auf der Nordfassade und den Balkon auf der Südseite. Die 2-Zimmer-Wohnung befindet sich im Erdgeschoss auf der Westseite des Durchgangs. Der offene Wohn-/Essraum mit Küche öffnet sich gegen Westen zum privaten Sitzplatz. Ein Kern mit Dusche und Küche gliedert den offenen Grundriss der 5-Zimmer-Wohnung in Ess- und Wohnbereich. Beide orientieren sich zu den jeweiligen Gärten hin. Die einläufige Treppe folgt dem Dachverlauf und verbindet den überhohen Essraum mit der Galerie des Zimmergeschosses, das sich über die Einliegerwohnung und die ganze Gebäudelänge erstreckt. Im Bereich des volumetrischen Einschnittes und Balkons wird der Gang zum Steg, womit Tiefe und Höhe der ehemaligen Scheune erlebbar werden.

Materialisierung und Bauweise thematisieren das Vorhandene. Verputzte Aussenwände aus Dämmstein, akzentuierte Fensterleibungen mit Glattputz, leichte Dachvorsprünge aus Holz, Kupferrinnen und flache Dachziegel werden zeitgemäss eingesetzt und integrieren das Gebäude dennoch harmonisch in den dörflichen Kontext.

Situation

Erdgeschoss

Dachgeschoss

Untergeschoss

Längsschnitt

Querschnitt

Haus Sonneggstrasse Seewen

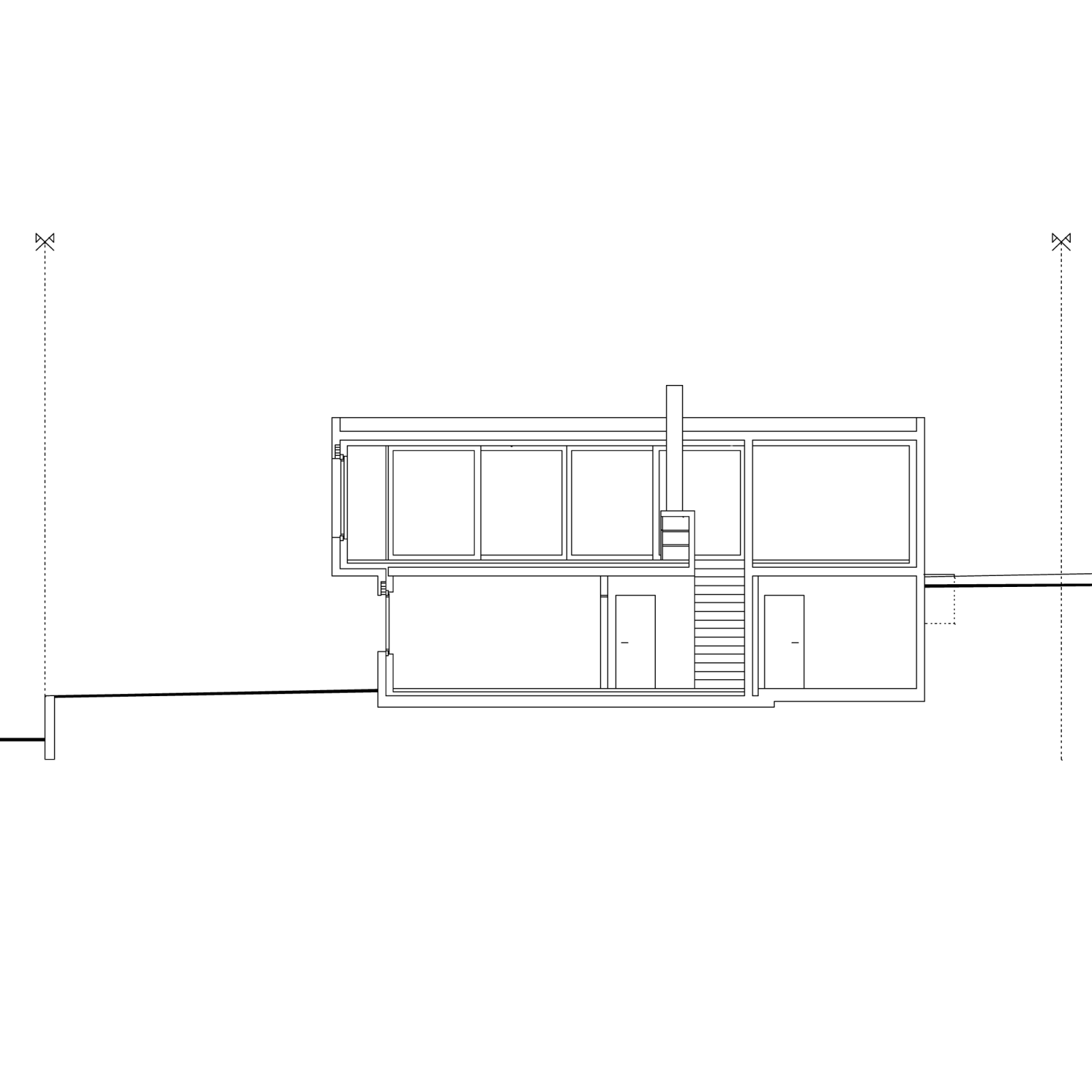
Die beiden höhenversetzen Volumen mit Satteldach sind präzise ins steil abfallende Gelände gesetzt und mit einem Vordach respektive über den gedeckten Sitzplatz unter der auskragenden Garage verbunden. Das Hauptgebäude steht quer zum Hang und kragt wiederum über den Sockel, in dem sich die Schlafräume befinden. Da dieser längs zum Hang verläuft, entsteht darüber eine ebene Fläche, die als Terrasse mit Pool genutzt wird. Die grosszügig dimensionierten strukturellen Öffnungen und Auskragungen verstärken den skulpturalen Ausdruck des Ensembles. Die einheitliche Materialisierung aus Beton mit Füllungen aus Glas und Metall verbindet die einzelnen Gebäudeteile zu einem überzeugenden Ganzen. 

Die Erschliessung über die Sonneggstrasse erfolgt von oben, an der Garage vorbei über eine ins Volumen eingeschnittene Treppenanlage zum gedeckten Eingang. Im Hauptgeschoss befinden sich Wohnen, Essen, Küche, Büro, WC, Reduit und Weinkeller. Die einläufige Treppe hinter dem Küchenmöbel führt ins Sockelgeschoss mit vorgelagertem Garten. Vom multifunktionalen Vorplatz mit Schrankfront werden die weiteren Räume wie Zimmer, Dusche, Ankleide und Bad erschlossen. Hangseitig befinden sich die Kellerräume. 

Im Innern dominiert eine einfache reduzierte Materialwahl. Das offene Erdgeschoss mit Ausrichtung zur Terrasse und zur Aussicht wird gegliedert durch drei raumhohe Möbel mit furnierten Holzoberflächen (Garderobe, Küche, Cheminée). Böden und Decken sind aus roh belassenem Beton, die Wände mit Glattputz versehen.

 

Obergeschoss

Erdgeschoss

Sockelgeschoss

Querschnitt

Längsschnitt

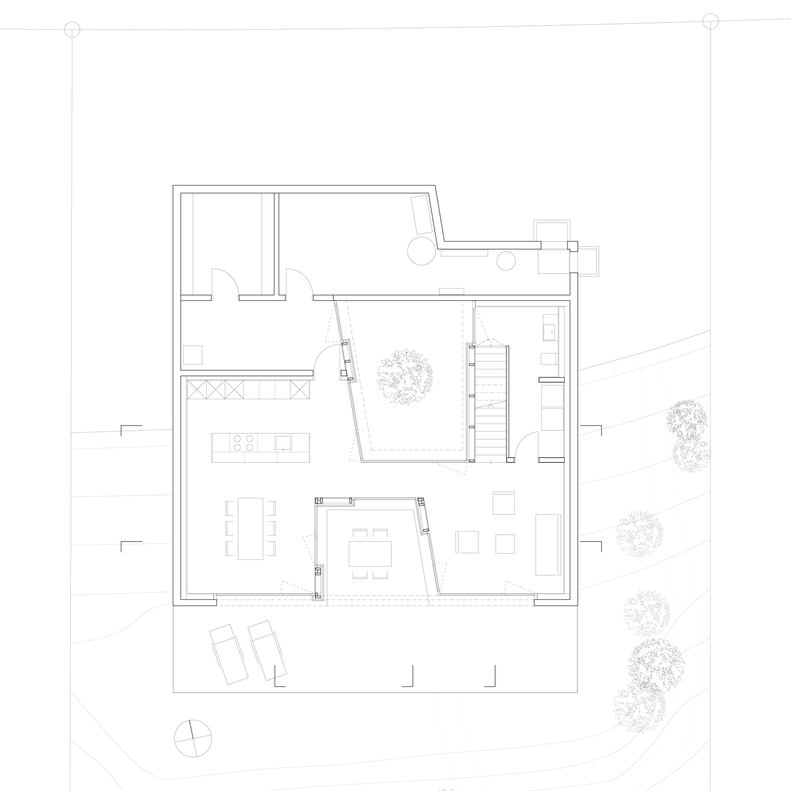
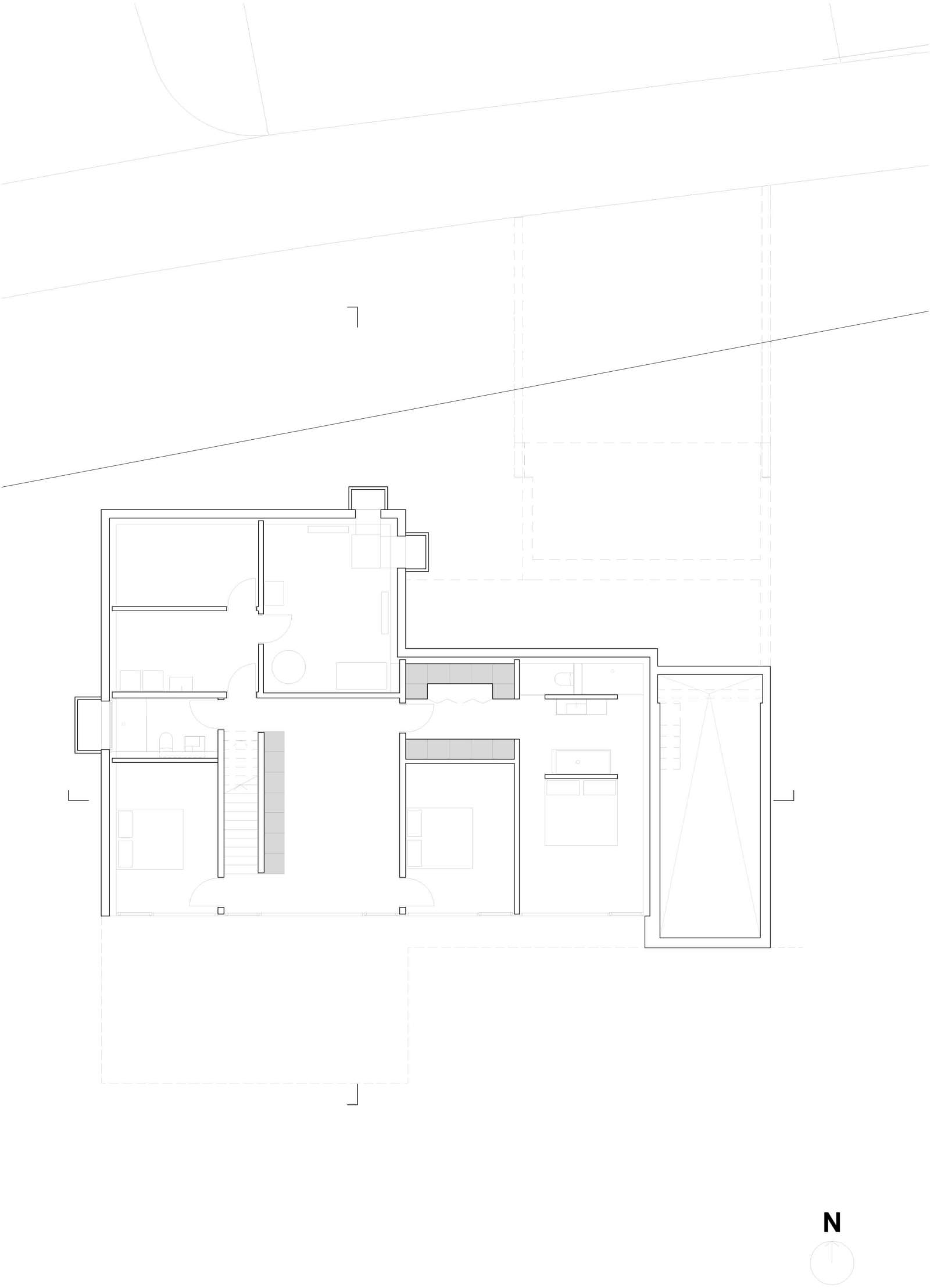
Haus Im Wygärtli Hofstetten

Das zweigeschossige Haus mit Innenhof und vorgelagerter Garage befindet sich am Südhang von Hofstetten. Die Erschliessung erfolgt strassenseitig von oben, die Wohnräume orientieren sich im Sockelgeschoss zum Garten hin. Die klare Ordnung der Raumnutzungen ermöglicht eine optimale Integration des Baukörpers ins bestehende Terrain, an dem fast keine Anpassungen nötig sind. Im Eingangsgeschoss befinden sich Entrée, offener Wohnbereich, zwei Zimmer, Bad und Ankleide. Über die einläufige Treppe gelangt man ins Sockelgeschoss mit Wohnen, Essen, Küche und Gäste-WC. Es wird einerseits durch den Innenhof und andererseits durch den gedeckten Sitzplatz gegliedert. Hangseitig befinden sich die Kellerräume. 

Alle Haupträume sind nach Süden, zur Aussicht und zum Garten hin ausgerichtet. Damit entsteht ein U-förmiges Gebäude, das einen Innenhof umschliesst, der das Zentrum des Hauses bildet, spannende Sichtbezüge schafft und die Wegführung innerhalb des Hauses bestimmt. Der Hof erlaubt trotz Hanglage eine mehrseitige Belichtung der Räume im Sockelgeschoss und einen starken räumlichen Bezug vom Eingangs- zum Sockelgeschoss.

Die harte Hülle aus Beton bildet den Übergang vom felsigen Erdreich zum Sockelgeschoss, das sich nur gegen Süden mit grosszügigen Verglasungen und Verkleidungen aus Lärchenholz öffnet. Im oberen Geschoss führt die Materialisierung mit harten Betonbändern im Bereich der Decken und weichen Füllungen von der Süd- über die Ostfassade bis zum Garagentor auf der Strassenseite. Die Hoffassaden sind analog gestaltet. Selbst im Innern wird dieses Konzept fortgeführt mit Sichtbetondecken, Hartbetonböden und Füllungen mit glatt verputzten Wänden respektive Lärchenfenstern- und verkleidungen.

Situation

Eingangsgeschoss

Sockelgeschoss

Querschnitt

Ansicht Ost

Längsschnitt

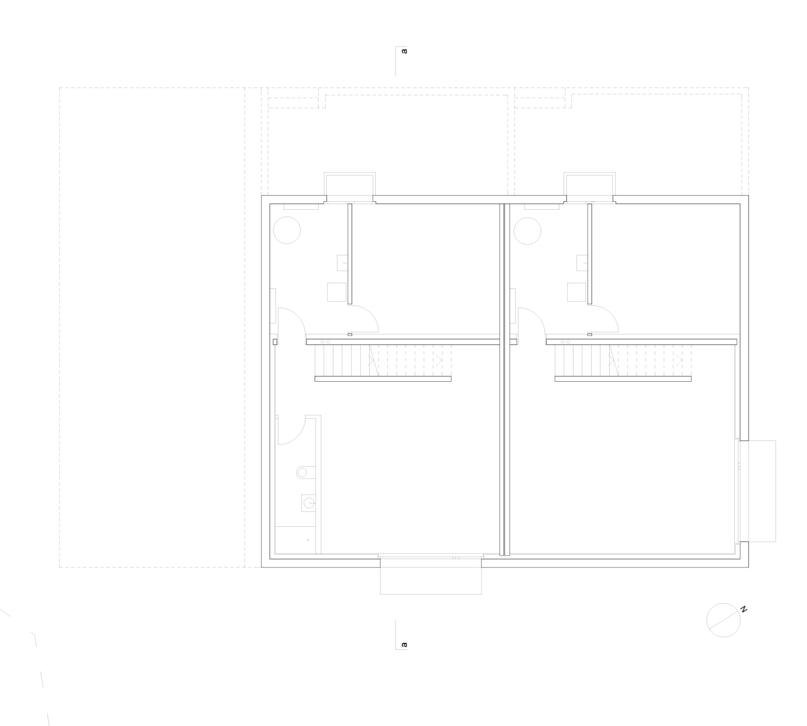
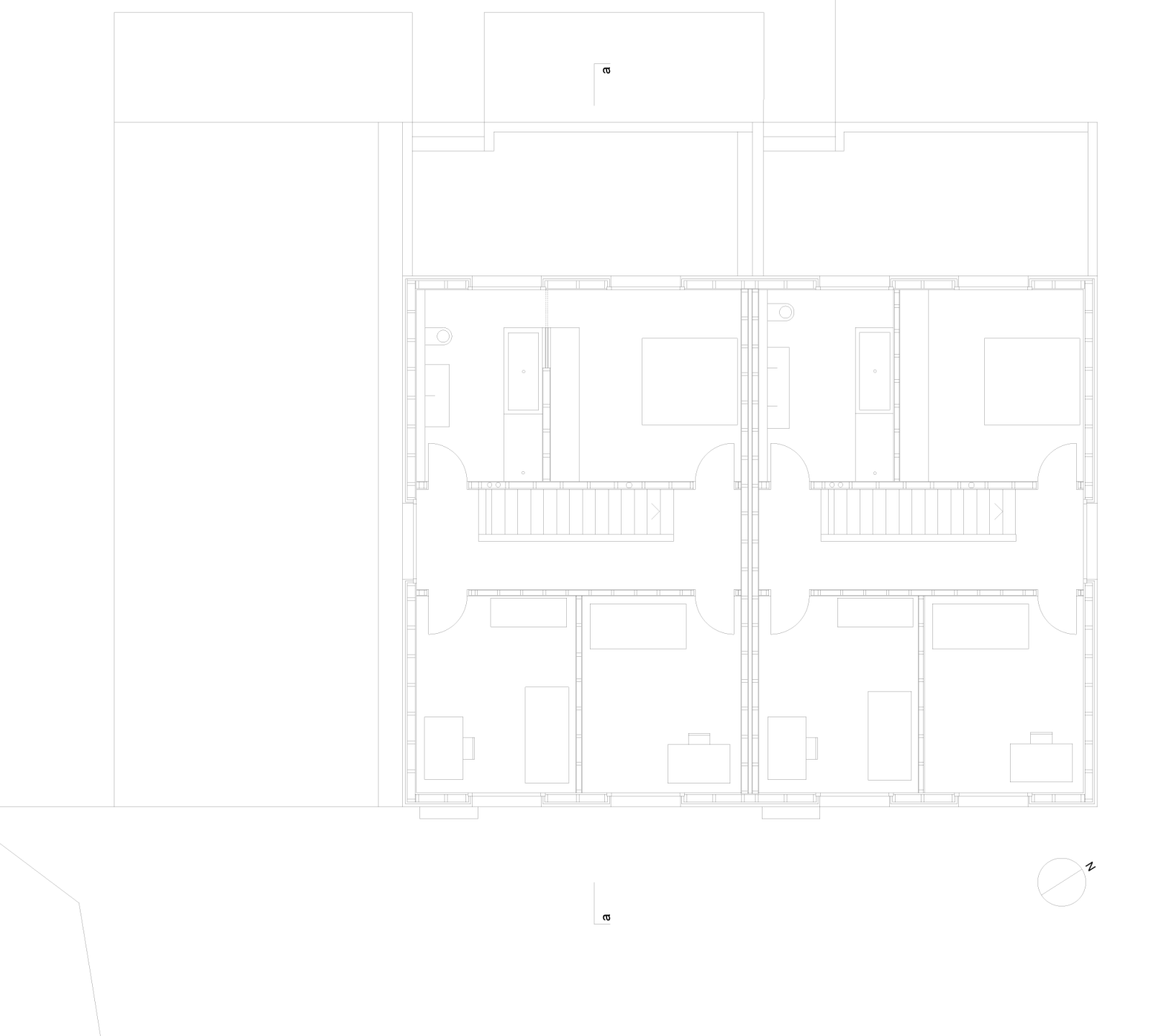
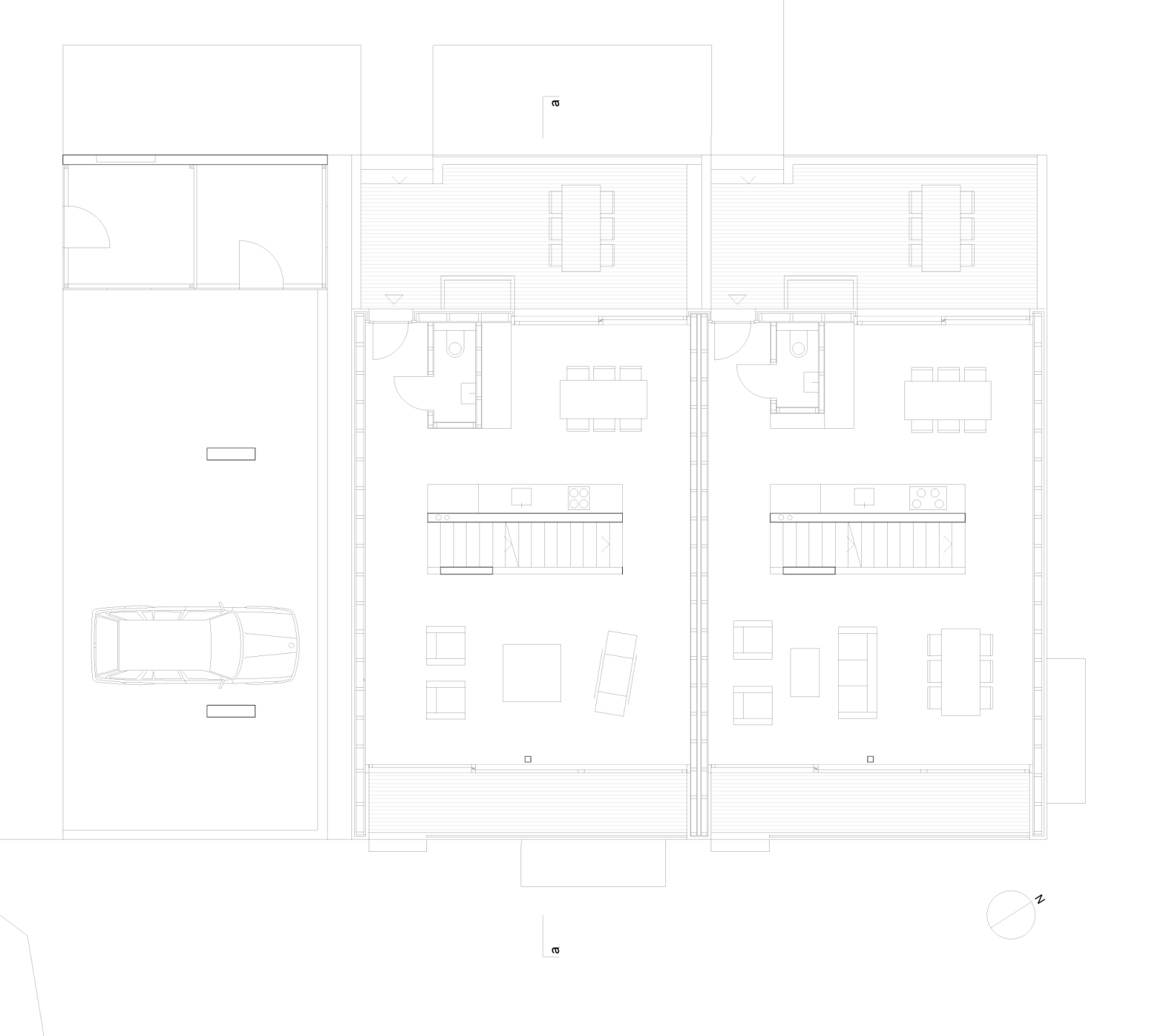
Häuser Witterswilerstrasse Bättwil

Die Reiheneinfamilienhäuser befinden sich im Ortskern von Bättwil, im Hofstattbereich eines historischen Wohnhauses mit mächtiger Scheune. Die Erschliessung erfolgt einerseits von der Benkenstrasse durch die Scheune, die umgenutzt wird und neu Wohnungen beherbergt, wo sich auch die Zufahrt zur Autoeinstellhalle befindet. Andererseits gibt es auch einen direkten Fussgänger- und Fahrradzugang über die Witterswilerstrasse.

Das Gebäude soll sich in die historische Bausubstanz einfügen und als Ergänzung der bestehenden Bebauung wahrgenommen werden. Diese kann sich so vom heterogenen Umfeld abgrenzen. Dies wird erreicht durch die volumetrische Ausformulierung als einfacher Baukörper mit Satteldach und die Materialisierung mit Ziegeldach und Holzfassade. Trotzdem soll der Neubau klar als solcher erkennbar sein. Die bewusste Detailausarbeitung von Vor- und Rücksprüngen sowie differenzierten Holzbretterschalungen erzeugt eine subtile Modernität und lässt erkennen, dass es sich um addierte Wohneinheiten handelt.

Die Treppenhäuser befinden sich jeweils an der Eingangsfassade der vier Häuser. Dadurch kann der Geländesprung über die Treppe aufgenommen und maximale Grundrissflexibilität erreicht werden. Die Küche mit Garderobe steht einem Möbel gleich frei im Raum und gliedert den offenen Grundriss in Ess- und Wohnbereich. Letzterer öffnet sich gegen Süden zum gedeckten Gartensitzplatz. Im Obergeschoss befinden sich jeweils zwei grosszügige Zimmer mit Bad. Der Dachraum kann ebenfalls für zwei Zimmer oder aber auch für ein grosses Zimmer mit Dusche und Ankleide genutzt werden. Das Kellergeschoss ist in Massivbauweise erstellt, die weiteren Geschosse in Holzelementbauweise mit hinterlüfteten Fassaden aus Lärchenholz. Die flexible Raumanordnung und die einfache, ehrliche Bauweise ermöglichen Häuser mit qualitativ gutem Wohnraum zu vernünftigen Preisen.

Situation

Erdgeschoss

Obergeschoss

Dachgeschoss

Untergeschoss

Schnitt

Fassade Nord

Fassade Süd

Fassade Ost

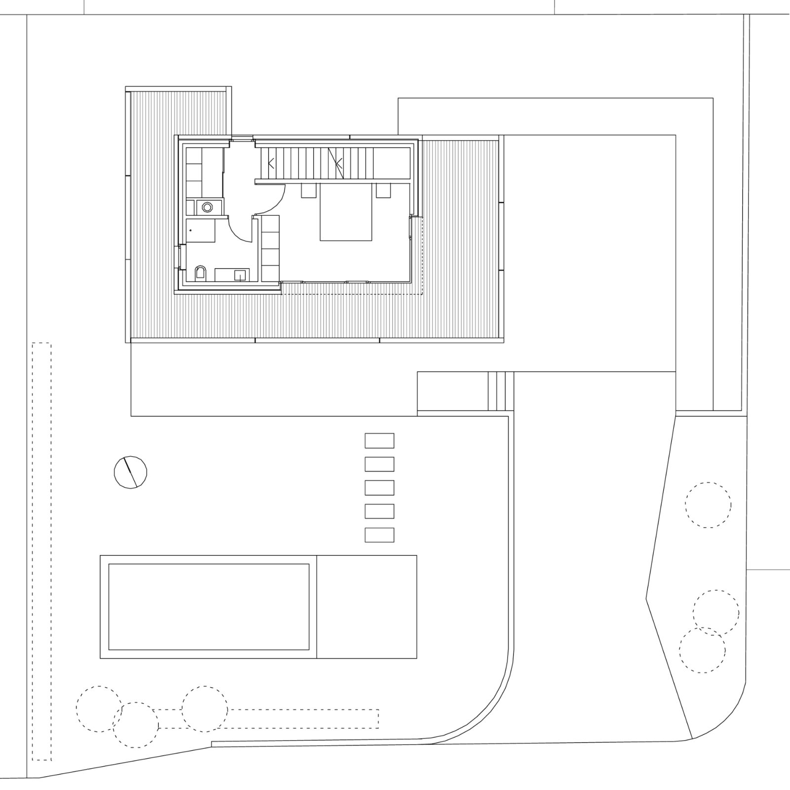
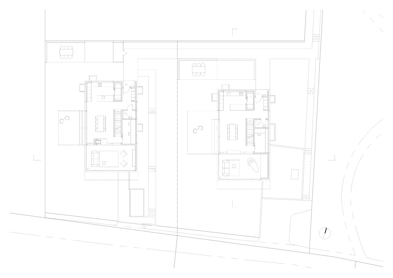
Häuser Im Autal Riehen

Anstelle der bestehenden Liegenschaft sind zwei Häuser entstanden, die zusammen ein Ensemble bilden und am Rande des Naherholungsgebiets In der Au stehen. Die quer zum Hang situierten Gebäude lassen den Blick in die Natur frei und fügen sich subtil in die Landschaft ein. Durch die konsequente Ausrichtung gegen Süden kann die Hanglage optimal für die Belichtung der jeweils drei Geschosse genutzt werden. Die klassisch moderne Architektur mit grossen Öfnungen, klaren Raumeinteilungen und Raumabfolgen sorgt für einen fliessenden Übergang von innen und aussen. Die Übereck-Öffnung des Wohngeschosses in Richtung Südwesten unterstützt die Grundidee des Entwurfs.

Die Häuser sind einerseits von oben, von der Inzlingerstrasse, als auch von unten, vom Weg In der Au, erschlossen. Das Sockelgeschoss verfügt über ein grosszügiges Zimmer mit Bandfenster und Bad. Die einläufige Treppe führt ins loftartige Erdgeschoss. Küche, Ess- und Wohnzimmer sind zu einem grossen Raum mit über 65 m2 Wohnfläche zusammengefasst. Der Wohnbereich wird dabei mit einem Absatz, welcher dem Gelände folgt, und mit einer speziellen Überhöhe zusätzlich akzentuiert. Über seitlich zwischen die Wände gespannte offene Tritte, welche Licht auf die darunterliegende Treppe passieren lassen, gelangt man ins Obergeschoss. Neben zwei Zimmern und einem separatem Bad garantiert das im Kopfbereich des Hauses gelegene Schlafzimmer mit offener Ankleide, Dusche sowie vorgelagerter Loggia luxuriöses Wohnen mit Aussicht.

Die schlichte Materialisierung aussen mit Klinkersteinen, die selbst über die bestehende Garage gezogen worden sind, betont die volumetrische Erscheinung der präzise proportionierten Baukörper. Die Häuser sind mit Komfortlüftungen und Photovoltaik auf den Dachflächen ausgestattet und werden mit einer Luft-Wasser-Wärmepumpe beheizt.

Sockelgeschoss

Erdgeschoss

Obergeschoss

Querschnitt

Haus Neuhofweg Binningen

Das zweigeschossige Einfamilienhaus befindet sich nahe der Stadt Basel auf einer Anhöhe im Villenquartier einer Agglomerationsgemeinde. Etwas von der Strasse zurückgesetzt gelangt man über einen Privatweg auf das parkähnliche Grundstück und zum auf dessen Nordseite platzierten Haus. Verschiedene Vor- und Rücksprünge sowie die abgerundeten und mit unterschiedlichen Radien ausgeführten Ecken verleihen dem Gebäude eine skulpturale und dynamische Erscheinung. Dies wird durch eine schlichte und einheitliche Materialisierung in Beton und die differenzierte Ausformulierung der verschiedenen Öffnungen akzentuiert. Die Fenster auf Nord-, West- und Ostseite sind hinter der Fassade angeordnet, die in diesen Bereichen mit kleinen runden Öffnungen als Filter wirkt. Dagegen befinden sich grosse Öffnungen auf der Südseite. Durch das Einknicken der Fassade auf der Gartenseite wird die innere Gliederung thematisiert. Die Rundungen setzen sich auch im Innern fort und erzeugen so spannende Raumabfolgen.

Das Erdgeschoss wird durch einen zentral gelegenen Kern in Wohnraum und Wohnküche gegliedert und öffnet sich gegen Süden zu Garten und Pool. Über den eingeschobenen Aussenraum entsteht ein starker Bezug der beiden Räume. Vom Wohnzimmer gelangt man über eine Wendeltreppe ins Obergeschoss mit verzogen verlaufender Galerie, vier Zimmern, zwei Nassräumen und einem offenen Bürobereich. Über eine aussen ans Volumen angehängte einläufige Treppe wird die Dachterrasse mit herrlichem Ausblick erschlossen. Im Untergeschoss befinden sich ein Gästezimmer und ein grosszügiger offener Mehrzweckraum. Beide werden über einen Hof, der auch vom Garten her zugänglich ist, natürlich belichtet. Seekiefersperrholzplatten, roher Stahl, Betonterrazzoboden und Sichtbetonwände sind Ausdruck einer ehrlichen schlichten Materialisierung des Innenraums.

Situation

Erdgeschoss

Obergeschoss

Untergeschoss

Schnitt a-a

Fassade Süd

Schnitt b-b

Fassade West

Häuser Alte Hofstetterstrasse Flüh

Die zwei in einem Baukörper zusammengefassten Häuser führen die bestehende Bebauung entlang der Hangkante und der Alten Hofstetterstrasse weiter. Damit wird die letzte vorhandene Baulücke in dieser Zeile geschlossen. An der Alten Hofstetterstrasse sind die Parkplätze angeordnet. Eine kurze Treppe führt zu den Hauseingängen, wo sich die Veloabstellplätze in einem gedeckten Raum unter den Parkplätzen befinden. Im grosszügig verglasten Erdgeschoss mit Wohnen, Essen, Küche und Sitzplatz lassen sich die Aussicht über Flüh zum Kloster Mariastein und zur Ruine Landskron geniessen. Im Geschoss darüber befinden sich zwei Zimmer und das Bad unter der spektakulären, mehrfach geknickten Dachform. Über das skulpturale Treppenhaus, in dem sich die beiden Treppen jeweils um Einbaumöbel winden, gelangt man ins Sockelgeschoss mit weiteren Zimmern, Dusche und Kellerräumen.

Durch die Platzierung des Baukörpers am oberen Rand der Parzelle und parallel zum Höhenverlauf kann die Hanglage optimal für die Belichtung der drei Geschosse genutzt werden. Die geknickten Fassaden und Dachflächen ermöglichen eine optimale Integration in die bestehende Situation und verstärken die klare Ausrichtung zur Aussicht und Sonne hin. Dieses Thema findet seine logische räumliche Fortführung in den seitlich des Baukörpers angeordneten Sitzplätzen. Innen entstehen spannende und dynamische Räume und Raumabfolgen.

Die einheitliche Materialisierung aussen mit Sichtbeton für Wände und Dach sowie die praktisch fassadenbündig eingesetzten Fensterfronten aus Lärchenholz komplettieren den volumetrischen kristallartigen Ausdruck des Gebäudes. Im Innern verstärkt die reduzierte Materialwahl mit Sichtbetondecken, Weissputzwänden und sägerohen Holzböden die Wahrnehmung der diversen vorhandenen Schrägen bei Wänden und Dach. Die Nachhaltigkeit in Bezug auf Ressourcen-Nutzung ist gegeben durch die kompakte Gebäudeform, die durchdachte Anordnung der Raumflächen, die Verwendung von unveredelten Materialien und die haustechnische Ausstattung mit Luft-Wasser-Wärmepumpe und Komfortlüftung.

Situation

Dachgeschoss

Erdgeschoss

Sockelgeschoss

Schnitt

Fassade Nord

Haus Rauracherweg II Hofstetten

Das freistehende Haus mit vorgelagerter Einstellhalle und Pool liegt am Südhang von Hofstetten. Die Erschliessung erfolgt von unten, wo sich Zugang, Einstellhalle und hangseitig die Kellerräume befinden. Fitness- und Gästebereich im Erdgeschoss werden über einen nördlichen Innenhof belichtet, währenddem sich Küche, Ess- und Wohnraum mit grosszügigen Verglasungen gegen Süden zum Sitzplatz und Garten hin öffnen. Das Obergeschoss ist funktionell gegliedert in einen Westflügel mit zwei Zimmern und Dusche und in einen Ostflügel mit Schlafen, Ankleide und Bad.

Die Überlagerung von H-förmigem Obergeschoss und U-förmigem Erdgeschoss verleiht dem Gebäude eine skulpturale Erscheinung, die von kontrollierten Rücksprüngen und Auskragungen geprägt ist. Im Zentrum und in der Überlagerung der beiden Formen findet sich das Treppenhaus als Teil des Kerns, der sich in Material- und Farbgebung von den anderen Räumen abgrenzt. Gegen Osten und Westen sind die Fassaden geschlossen, womit sich das Gebäude ideal ins ansteigende Gelände integrieren lässt. Gegen Süden und Norden, in Richtung der länglichen Parzelle, öffnet sich das Volumen zu den unterschiedlich ausformulierten Aussenräumen wie Sitzplätzen, Terrassen und Hof.

Die "harte" Aussenhülle gegen Osten und Westen und die Deckenstirnen sind jeweils in Sichtbeton, mit sägerohen Horizontalbrettern geschalt, ausgeführt. Die "weiche" Trennung zu den Aussenräumen besteht aus Holz-Metall-Fenstern und gleichfarbigen Fassadenverkleidungen aus Metall.

Situation

Obergeschoss

Erdgeschoss

Untergeschoss

Schnitt

Ansicht West

Ansicht Nord

Häuser Im Wygärtli Hofstetten

Die beiden Häuser Im Wygärtli befinden sich in einem Villengarten am Südhang von Hofstetten. Die zweigeschossigen Gebäude stehen senkrecht zur Hangkante und sind dem Hangverlauf entsprechend abgetreppt. Die Erschliessung erfolgt von Norden direkt auf Höhe des Obergeschosses, wo sich ein schöner Ausblick auf die ersten Hügelzüge des Juras bietet. Das Dach bildet mit seiner geschwungenen Form eine eigene Topografie, welche die beiden Geschosse verbindet und die Hanglage zum gestalterischen Thema macht. Die räumliche Verbindung im Innern erfolgt über eine einläufige Treppe von der Eingangshalle im Wohngeschoss ins darunter liegende Schlafgeschoss. Die Dynamik und Offenheit des Treppenraumes schafft einen starken Bezug zwischen den beiden Geschossen und bringt Licht in die innen liegenden Nassräume. Diese gliedern das Schlafgeschoss und sind mit transluziden Abschlüssen aus Glasbausteinen versehen.

Die Wirkung der geschwungenen Decken und abgerundeten Ecken im Innenraum wird verstärkt durch die reduzierte ehrliche Materialwahl; Sichtbetondecken, eingefärbte Unterlagsböden und Wandoberflächen aus Weissputz. Die Materialisierung aussen unterstützt das volumetrische Konzept. Zwischen den geschwungenen, harten Deckenstirnen aus Beton bilden raumhohe Fenster und eine vorgehängte Fassade aus farbigen Lichtwellplatten eine leichte Füllung. Die Nachhaltigkeit in Bezug auf Ressourcen-Nutzung ist gegeben durch den sorgfältigen Umgang mit Raumflächen und -grössen, die Verwendung von unveredelten Materialien und die haustechnische Ausstattung mit Wärmepumpe, thermischer Solaranlage und Komfortlüftung.

Das Projekt steht exemplarisch für eine massvolle Verdichtung von ländlichen Villenquartieren mit geringer Nutzungsziffer. Entscheidend dabei ist der Bezug der Neubauten zur bestehenden Villa und zur parkähnlichen Anlage. Die aus den topographischen Gegebenheiten entwickelte Gebäudeform ermöglicht eine optimale Integration in den bestehenden Ort und lässt der Villa genügend Präsenz, Freiraum und Aussicht.

Situation

Erdgeschoss

Obergeschoss

Schnitt a-a

Schnitt b-b

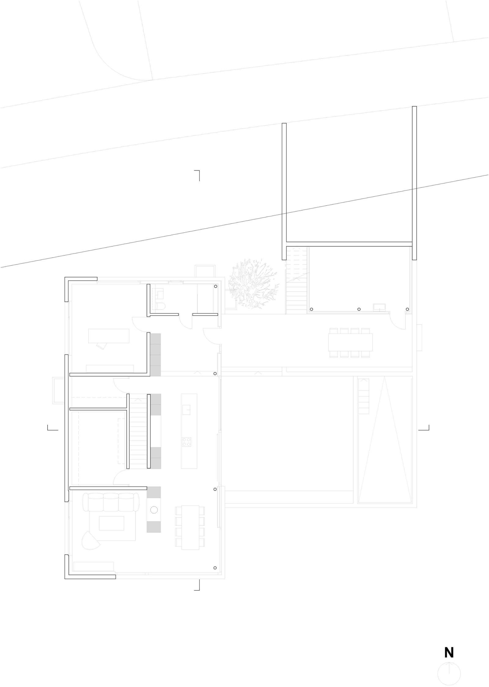
Häuser bei der Mühle Flüh

Die Häuser sind Teil des Gestaltungsplanes Mühle, der primär die Erhaltung der Mühle und die Wiederherstellung des Mühleensembles bezweckt. Dies wird möglich durch eine intensivere Nutzung des ursprünglich für landwirtschaftliche Zwecke genutzten Grundstückteils an der Sternenbergstrasse mit gut ins orts- und Landschaftsbild integrierten Baukörpern von hoher architektonischer Qualität.

Die drei Baukörper sind ost-west orientiert und quer zum Hangverlauf gesetzt. Dadurch bleibt die Durchlässigkeit des Areals auf der Südseite, zu den Feldern und zum Wald hin, erhalten. Der Zugang erfolgt via Sternenbergstrasse zu den gedeckten Autoabstellplätzen mit Serviceräumen und führt zu den Sitzplätzen und Eingängen der Häuser. Das Erdgeschoss wird durch die zentrale, offene Treppenanlage und das Gäste-WC in Eingangs-, Wohn- und Essbereich gegliedert. Die geschosshohe Verglasung mit vorgelagertem Balkon im Wohnen öffnet den Blick gegen Osten in den Gartenbereich. Die einläufige Treppe führt in den grosszügigen Vorplatzbereich des Obergeschosses mit direktem Zugang in alle drei Schlafräume und das Bad. Durch die Hanglage ist auch eine ausreichende Belichtung des gartenseitigen Raums im Sockelgeschoss möglich.

Sockelgeschoss, Sitzplätze und Treppenkern sind in Massivbauweise erstellt, die weiteren Räume und Geschosse in Holzelementbauweise mit hinterlüfteten Fassaden aus lasierten Dreischichtplatten. Die durchdachte Raumanordnung und die einfache, ehrliche Bauweise ermöglichten Häuser mit qualitativ gutem Wohnraum zu vernünftigen Preisen. Die Nachhaltigkeit in Bezug auf Ressourcennutzung ist gegeben durch den sorgfältigen Umgang mit Raumflächen und -grössen, die Verwendung von unveredelten Materialien und die haustechnische Ausstattung mit einer umweltfreundlichen Pelletheizung, die auch für die Warmwassererzeugung genutzt wird.

Situation

Erdgeschoss

Obergeschoss

Untergeschoss

Schnitt

Haus Hangweg Aesch

Das grosszügige zweigeschossige Haus mit Attika liegt am Nordhang von Aesch. Die Platzierung am nördlichen Ende, am tiefsten Punkt der Parzelle, und die Ausformulierung des Sockels mit Garage und Eingang ermöglichen eine optimale Nutzung des Gartens im Süden. Die vorhandene Höhendifferenz wird vom Sockelgeschoss aufgenommen.

Die zentral gelegene einläufige Treppe führt ins Erdgeschoss zur Küche und zum zweigeschossigen Essplatz, der sich über eine Galerie mit dem Obergeschoss verbindet und mit einer rahmenlosen Übereckverglasung nach Nord-Ost orientiert. Der starke innere Bezug vermittelt Offenheit und thematisiert den villenartigen Charakter des Hauses. Der Wohnraum erstreckt sich über die ganze Gebäudebreite und öffnet sich mit geschosshohen Verglasungen zum Garten mit Pool und Gartenhalle, die den räumlichen Abschluss bildet. Im Obergeschoss befinden sich die Zimmer der Kinder mit eigenem Bad und Galerie zum Essplatz. Das Attikageschoss mit Elternschlafzimmer, Bad und offener Bibliothek profitiert von einer dreiseitg umlaufenden Terrasse und einem wunderschönen Blick übers Birstal in Richtung Basel.

Die klare Nord-Süd-Ausrichtung, erkennbar durch die leichten Auskragungen des Erdgeschosses zum Sockelgeschoss und des Obergeschosses zum Erdgeschoss auf der Gartenseite, wird überlagert durch die Anordnung der Fenster und Materialisierung der Fassade. Die spannenden und präzise gesetzten Wechsel zwischen verputzten, gläsernen und metallischen Flächen betonen das skulpturale Erscheinungsbild des Baukörpers.

Sockelgeschoss

Erdgeschoss

Obergeschoss

Attikageschoss

Schnitt

Haus Ob dem Hölzli Binningen

Auf dem Binninger Hügel ist das freistehende Einfamilienhaus mit vorgelagertem Carport präzis in das gegen Norden abfallende Gelände gesetzt. Der Baukörper mit einer freien, von innen entwickelten Form besteht aus zwei Vollgeschossen mit Kellergeschoss und begehbarer Dachterrasse. Die abgerundeten Ecken und die Vor- und Rücksprünge betonen die volumetrische Erscheinung und lassen das Haus geschmeidig und kleiner erscheinen.

Der Zugang erfolgt von Süden her über einen Vorplatz zum gedeckten Eingang. Der Sitzplatz orientiert sich gegen Westen, währenddem der steiler abfallende nördliche Teil der Parzelle unangetastet bleibt. Im Erdgeschoss befinden sich der Wohn-und Essraum mit toller Aussicht über Basel, die Küche, die Gäste-Dusche und das separate Büro. Darunter befinden sich Hobbyraum, Technik, Waschküche und Keller mit Ausgang in den Garten. Im oberen Geschoss sind vier Schlafzimmer, eine Büroecke und zwei Badezimmer untergebracht. Über das Treppenhaus gelangt man hinauf zur gedeckten Dachterrasse mit Rundblick.

Das Haus ist in Minergie-Bauweise erstellt und mit einer Komfortlüftung sowie einer Sole-Wasser-Wärmepumpe mit Erdsonde, zusätzlich unterstützt durch eine thermische Solaranlage, ausgestattet.

Erdgeschoss

Obergeschoss

Schnitt

Haus Oberer Rosenbergweg Allschwil

Beim Haus am Rosenbergweg handelt es sich um ein freistehendes Einfamilienhaus in einer parkähnlichen Anlage. Die Ausrichtung gegen Südwesten bringt eine Platzierung im hinteren Bereich der länglichen Parzelle mit sich. Den Abschluss gegen die Strasse bildet ein dem Strassenhöhenverlauf folgendes auskragendes Vordach mit gedeckten Autoabstellplätzen sowie gartenseitig eingeschobenem Geräteraum. Der orthogonale Baukörper wird charakterisiert durch einen U-förmigen, einseitig weit in den Garten greifenden, eingeschossigen Wohn-/Essbereich und einen rechtwinklig dazu verlaufenden Schlafbereich darüber. Die präzis gesetzten Auskragungen des Obergeschosses generieren sowohl einen gedeckten Zugang als auch einen gedeckten Sitzplatz. Die Form des Gebäudes betont die klare Wegführung zum Eingang, öffnet sich gegen Süden und erlaubt eine selbstverständliche Integration ins gewachsene Terrain.

Die raumhohen Verglasungen und die Überhöhung der Schlafzimmer im Obergeschoss bringen grösstmöglichen Lichteinfall mit bestmöglichem Ausblick in den Garten. Die klare Ausrichtung mit grossen Fensterfronten gegen Südwesten und geschlossenen Flächen zu den Nachbarparzellen erlaubt insbesondere im Erdgeschoss ein introvertiertes Wohnen mit spannenden Sichtbezügen zwischen Wohn-/Essbereich, gedecktem Sitzplatz und Bibliothek mit Cheminée.

Die beiden Geschosse des Hauses sind in Holzelementbauweise erstellt, Bodenplatte, Kellerwände und Kellerdecke aus Stahlbeton. Die hinterlüftete Fassade besteht aus vertikalen vorvergrauten Holzlatten. Durch die Fassaden- und Geschossweise wechselnden Abstände der Schalung kommt die dunkelrote Winddichtung dahinter weniger oder mehr zur Geltung und erzeugt ein überraschendes Farb- und Schattenspiel. Die reduzierte Materialisierung aussen findet ihre Entsprechung auch im Innern. Sowohl Wände und Decken als auch die zahlreichen Möbeleinbauten sind in einem neutralen Beigeton gehalten und kontrastieren mit dem dunklen eingefärbten Unterlagsboden.

Die Nachhaltigkeit des Gebäudes ist gewährleistet durch die Verwendung von natürlichen Materialien, durch die Holzelementbauweise mit überdurchschnittlicher Dämmung und die maximal mögliche Nutzung passiver Sonnenenergie aufgrund der Platzierung der Öffnungen. Geheizt wird mit Holzpellets, unterstützt durch eine thermische Solaranlage.

Erdgeschoss

Obergeschoss

Schnitt a-a

Schnitt b-b

Haus Ob dem Hügliacker II Binningen

Der L-förmige Baukörper mit vorgelagertem Carport liegt in leicht gegen Osten abfallendem Gelände auf dem Binninger Hügel und öffnet sich gegen Südwest. Das kompakte Obergeschoss dominiert das leicht eingezogene Erdgeschoss und betont durch die einzelnen, ausgeschnittenen Fenster und seine dunkle Farbgebung die spezielle Volumetrie. Das Erdgeschoss wird bewusst in Material und Farbe vom Obergeschoss unterschieden, was die klare Horizontalität des Gebäudes verstärkt.

Der Zugang erfolgt über den Carport, der zugleich gedeckter Eingang ist. Im Erdgeschoss befinden sich Wohn- und Essräume mit Küche, separatem Büro und Gäste-WC. Die grossen Fensterfronten mit teils rahmenlosen Glasscheiben verwischen die Trennung von aussen und innen und schaffen interessante Raumbezüge innerhalb der verwinkelten L-Form des Gebäudes. Im unteren Geschoss befinden sich Hobbyraum, Technik und Keller. Im oberen Geschoss sind drei Schlafzimmer mit offener Spieldiele und zwei Badezimmer untergebracht.

Das konventionell konstruierte Haus ist mit einer Aussendämmung versehen. Der Putz erhält durch das eingeblasene schwarze Siliciumcarbid den Glitzereffekt, der je nach Wetter mehr oder weniger in Erscheinung tritt. Die Wände und Decken innen sind wie auch die Küche diskret in weiss gehalten und verleihen dem Haus zusammen mit der beigen Farbe des eingefärbten Unterlagsbodens und den bemusterten schwarzen Platten in den Nasszellen eine stark reduzierte, aber edle Note.

Erdgeschoss

Obergeschoss

Schnitt

Häuser In den Reben Hofstetten

Bei den Häusern In den Reben handelt es sich um zwei freistehende Einfamilienhäuser am oberen Südhang. Die Erschliessung der Häuser erfolgt von oben über das Eingangsgeschoss mit Entrée, Büro und Garagen. Dem Hangverlauf folgend gelangt man über die einläufige Treppe ins grosszügige Erdgeschoss und weiter ins Schlaf-und Kellergeschoss. Das Herz des Gebäudes bildet das mittlere Geschoss mit Wohnen, Essen, Küche und Elternteil, das mit seinen grossen Fensterfronten eine tolle Aussicht über Hofstetten bietet. Zusätzlich inszeniert wird dieses durch ein Auskragen der zweiseitig umlaufenden Terrasse, die auch den Sitzplatz im Sockelgeschoss räumlich fasst und dem Gebäude eine skuklpturale und dynamische Erscheinung verleiht.

Die reduzierte Materialisierung mit Sichtbetonaussenwänden und grosszügigen Fenstern aus naturbelassenem Lärchenholz im Bereich der auskragenden Betonplatten thematisiert die schlichte Formensprache und die starke Hanglage. Bei der Umgebungsgestaltung wird bewusst auf massive, das Haus konkurrenzierende, Terrassierungsmassnahmen verzichtet. Einzig zwei präzis gesetzte Akazienwabenmauern definieren einen ebenen Spielplatz im unebenen Gelände.

Obergeschoss

Erdgeschoss

Sockelgeschoss

Schnitt

Fassade Ost

Haus Choliberg Hofstetten

Am Fusse des Blauen und am Rande der Bauzone ist das freistehende Einfamilienhaus präzis in das leicht gegen Süden ansteigende Gelände gesetzt. Der Baukörper besteht aus zwei Geschossen und baut auf einem nahezu quadratischen, aber verzogenen Grundriss auf. Im Erdgeschoss ist auf der Südwestseite ein bis ins untere Geschoss durchgehender Innenhof und der Sitzplatz aus dem 'harten' Baukörper ausgeschnitten und die Schnittfläche verglast. Das Sockelgeschoss springt auf der Nord- und Ostseite gegenüber dem Erdgeschoss zurück und ist 'weich' materialisiert.

Der gedeckte Teil markiert den Eingang und bietet Platz für die Autoabstellplätze. Das Sockelgeschoss mit Eingang, Büro, Dusche und Kellerräumen wird über den zentralen Innenhof beleuchtet und durch eine einläufige Treppe mit dem Hauptgeschoss verbunden. Dieses wird als fliessender Raum mit Rundungen statt Ecken verstanden, der nur durch zwei verputzte Körper in Wohn- und Schlafbereiche gegliedert wird.

Die harte Aussenhaut aus Beton ist mit OSB-Platten geschalt, was eine unverwechselbare samtene Oberfläche ergibt und im Innern durch die Verkleidung der Innendämmung mit OSB-Platten seine thematische Fortsetzung findet. Die drei aufgesetzten Giebel sind baugesetzlich bedingt, sollen mit Wildreben überwachsen werden und sowohl oberer Abschluss des Hauses als auch Karikatur sein. Der grau belassene Unterlagsboden, die Sichtbetondecken und die Wände mit farblos gestrichenem Weissputz verleihen den Innenräumen zusammen mit dem OSB und den farbigen Sonnenstoren und Duschgläsern einen rohen und trashigen Ausdruck.

Sockelgeschoss

Erdgeschoss

Schnitt

Häuser Römerstrasse Hofstetten

Mitten im Zentrum von Hofstetten interpretieren die beiden Wohnhäuser den historischen Kontext mit Bauernhäusern und Scheunen auf eine moderne Art und Weise neu. Die homogen erscheinenden Baukörper sind scharfkantig und prismengleich in Holz ausgeführt. Markant wirkt die fünfeckige Volumetrie, die auch das traditionelle Satteldach aufgreift. Fenster und Balkon sind präzise ins Volumen geschnitten und rhythmisch übers Eck gezogen. Die beiden Gebäude stehen senkrecht zueinander und werden über einen Fussweg am gemeinsamen Carport vorbei erschlossen.

Der zweigeschossige Eingang wird durch einen einseitig offenen Betonbügel akzentuiert. Hierüber gelangt man zu einem durch seine weite und Offenheit geprägten Koch-, Ess- und Wohnraum, dessen räumliche Grenze zum Treppenhaus durch Stützen markiert wird. Im darüber liegenden Geschoss sind drei Individualräume mit Bad angeordnet. Hier bildet eine kleine Galerie die geschossübergreifende räumliche Verbindung innerhalb des Hauses. Nach oben ist der Raum offen bis unters Dach, wo sich ein weiterer grosszügiger Raum mit Reduit befindet.

Die in Holzelementbauweise konstruierten Häuser sind über einem massiven Untergeschoss errichtet. Die Fassade ist mit in Gehrung geschnittenen Holzlatten, die je nach Seite horizontal oder vertikal laufen, verkleidet. Innen wurden die Deckenuntersichten der Holzelemente sichtbar belassen, die Wände verputzt und der Boden mit eingefärbtem Unterlagsboden oder mit Ahornparkett ausgeführt.

Erdgeschoss

Obergeschoss

Dachgeschoss

Querschnitt

Längsschnitt

Haus Ob dem Hügliacker I Binningen

Das freistehende Einfamilienhaus mit angebauter Garage liegt in leicht gegen Osten abfallendem Gelände auf dem Binninger Hügel. Der rechtwinklige, L-förmige Baukörper orientiert sich klar gegen Süden. Die sich gestalterisch und konstruktiv abzeichnenden Deckenstirnen verbinden das Attikageschoss, die Volumenausstülpung im Nordwesten und die angebaute Garage zu einem stimmigen Ganzen. Dazwischen befinden sich, dem klassischen Villentyp in zeitgemässer Weise nachempfunden, geschosshohe Füllungen aus Glas oder vorfabrizierten Betonplatten. Über die Zufahrt im Süden gelangt man zur Garage und zum Haupteingang mit dem grosszügig verglasten Wohngeschoss mit gedecktem Sitzplatz. 

Das Erdgeschoss wird charakterisiert durch einen fliessenden Raum mit Nischen, die dem zentralen Wohnbereich angegliedert sind. Darunter befinden sich die Keller- und Technikräume, darüber das Schlafgeschoss der Kinder mit vier Zimmern und Bad. Das Attikageschoss mit Terrasse ist ganz den Eltern vorbehalten mit Schlafen, Ankleide, Dusche und Dachterrasse. Als zentrales Element verbindet die Treppenhauswand in Sichtbeton die einzelnen Geschosse. Zusammen mit dem rohen Charakter des anthrazit eingefärbten Unterlagsbodens und den sandfarbig gestrichenen Wänden und Decken ergibt sich eine einzigartige Wohnatmosphäre mit mexikanischem Flair.

Erdgeschoss

Obergeschoss

Attikageschoss

Schnitt

Haus Mariasteinstrasse Hofstetten

Mit vornehmer Ausstrahlung, geradezu skulptural in seiner Erscheinung und dabei sanft in die Topographie am Ortsrand integriert, präsentiert sich das grosszügige Wohnhaus an der Mariasteinstrasse. Changierender Klinker unterstreicht die edle Ästhetik des L-förmig konzipierten Baukörpers. Dabei fügen sich die beiden zweigeschossigen Bauteile um ein halbes Geschoss versetzt aneinander. Einschnitte für den Eingang an der Front und für den Sitzplatz im rückwärtigen Bereich verstärken die skulpturale Präsenz. Nahe an der Strasse sind Garage und Carport angeordnet. Ein Fussweg führt zum Hauseingang.

Auf dieser Ebene befinden sich Garderobe und Gäste-WC sowie das Büro. Über die zentral gelegene Treppe werden die halbgeschossig versetzten weiteren Ebenen erschlossen: Auf Gartenniveau das Wohngeschoss mit offener Küche, darüber das Geschoss der Eltern sowie zuoberst der Schlafbereich der Kinder. Im Untergeschoss stehen zusätzlich ein grosser Mehrzweckraum sowie Keller- und Technikräume zur Verfügung.

Indem sich das Wohngeschoss raumhoch verglast nach aussen öffnet, greift dieser Bereich gleichsam über den Aussensitzplatz mit Pool bis weit in die Landschaft hinein, an deren Horizont der Hügelzug des Blauen steht. Sämtliche Böden, selbst in den Badezimmern, sind in Eiche gefertigt. Eiche kam ebenfalls für die Fenster und den Holzrost des Sitzplatzes zum Einsatz. So bildet das edle Holz einen warmen Kontrast zum heterogenen, rötlich-anthrazitfarbigen Sichtmauerwerk.

Erdgeschoss

Obergeschoss

Schnitt

Haus Hollenweg Metzerlen

Am Nordhang oberhalb des Dorfkerns gelegen, schliesst das Haus mit seinem doppelt geknickten Dach das Neubauquartier markant zum Wald hin ab. Der massive Betonsockel transformiert gegen Süden zu einer den Sitzplatz umfassenden Schlaufe. Zusammen mit dem Eingangsbereich entsteht so eine interessante Abwicklung, über der selbstbewusst der in rot gestrichene Holzbau posiert.

Die überhöhte Eingangshalle wirkt imposant und lässt über die Gallerie des Wohnzimmers den Blick bis unter das ansteigende Dach zu. Die klare Gliederung des Innenraumes steht in direktem Bezug zur Dachform. Im Obergeschoss ergeben sich so unterschiedliche Zimmertypen mit Giebel- oder Pultdach-Decken. Die auf der Südseite des Hauses eingezogene Loggia ermöglicht in den angrenzenden Zimmern geschosshohe Fenster zum Garten hin.

Erdgeschoss

Obergeschoss

Schnitt

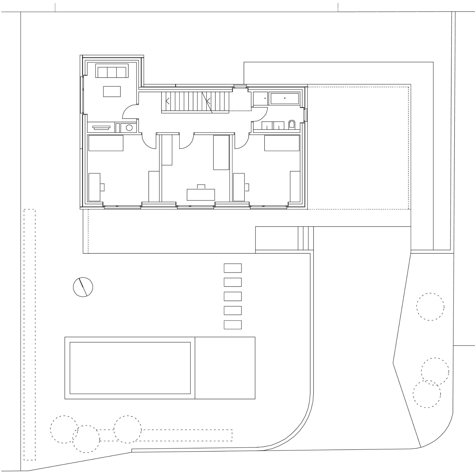
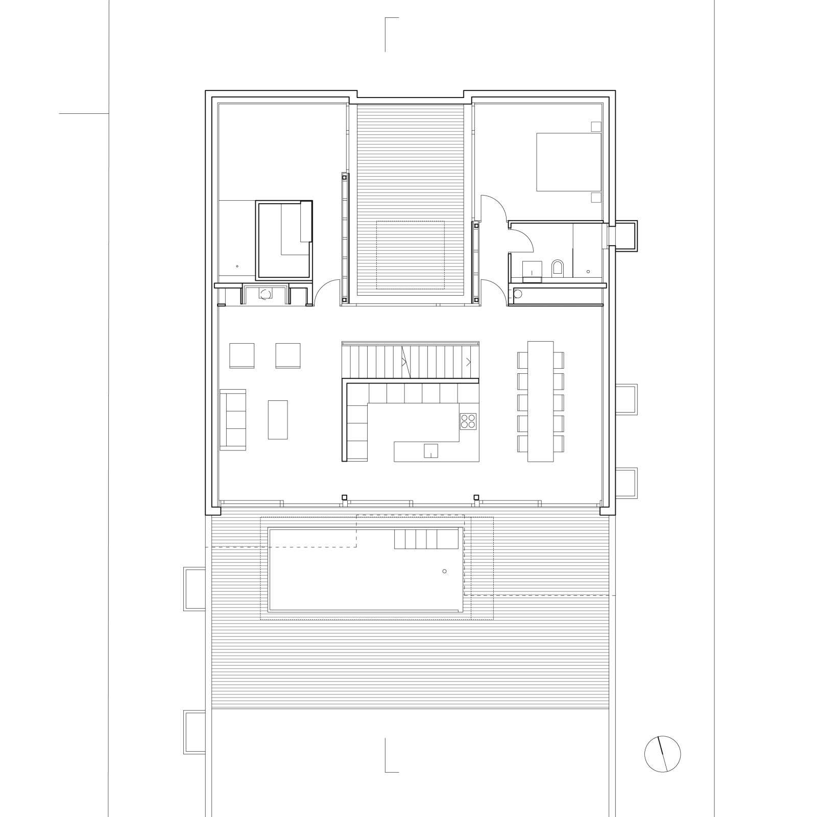
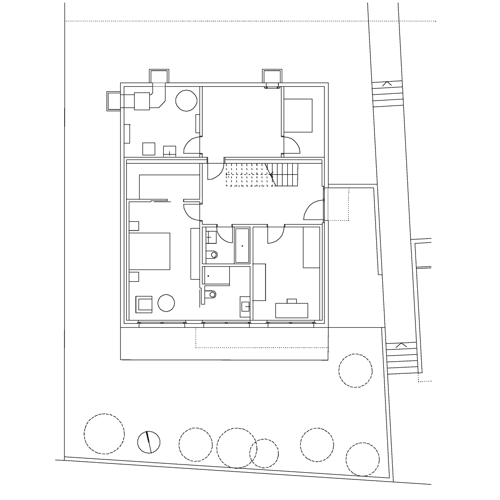
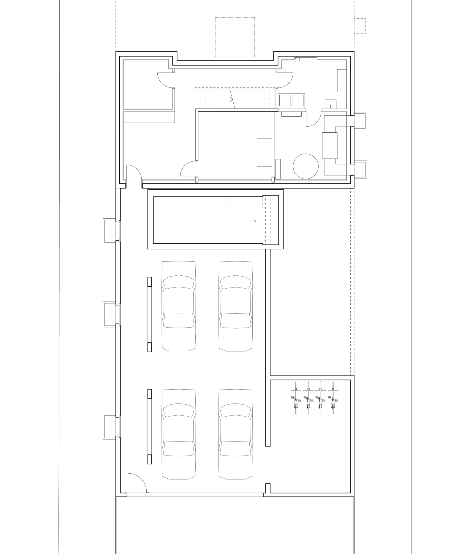
Häuser Auf den Felsen Hofstetten

Die Überbauung mit drei Einfamilienhäusern liegt am Südhang etwas oberhalb des alten Dorfkerns von Hofstetten. Die gestaffelten Baukörper mit grosszügigen Terrassen sind präzise in den Hang gestellt und gliedern sich um den zentralen Carport. Im Erdgeschoss betritt man über eine grosszügige Eingangshalle das Haus. Vorbei an den privaten Räumen führt eine einläufige Treppe nach oben ins grosszügige Wohngeschoss mit umwerfender Aussicht über das gesamte Tal.

Küche und Wohnraum gruppieren sich um die seitlich gegen Südwesten angeordnete Terrasse und ermöglichen so interessante Durchblicke innerhalb des loftartigen Obergeschosses. Die Materialisierung der Gebäudehülle in Beton wird im Innern thematisch aufgenommen. Küchen, Lavabo- und Cheminéeablagen aus Beton verweisen auf die harte Aussenschale. Die Materialisierung des Innenraums ist individuell auf die Wünsche der jeweiligen Bauherrschaft abgestimmt.

Situation

Erdgeschoss

Obergeschoss

Schnitt

Haus Rauracherweg I Hofstetten

Oberhalb der alten Dorfkirche am Südhang gelegen, vereint das aus schwarzem Klinker erstellte Einfamilienhaus Wohnen und Arbeiten auf drei Geschossen. Über den Zugangshof gelangt man via Sockel-, an den Büros vorbei ins Erdgeschoss. Hier öffnet sich das Haus gänzlich gegen Süden. Vom Wohnzimmer mit grosszügiger Galerie überblickt man die ganze Hochebene von Hofstetten bis nach Mariastein.

Ein im innern freigestellter Kern beherbergt sämtliche Nasszellen sowie die Küche. Dies ermöglicht neben interessanten Aus- auch immer wieder spannende Durchblicke im Innern. Im Obergeschoss befinden sich neben den beiden Schlafzimmern ein nach Süden offenes Bad. Sorgfältig ausgewählte Materialien betonen das räumliche Konzept und tragen massgeblich zur angenehmen Ambiente bei.

Erdgeschoss

Obergeschoss

Schnitt a-a

Schnitt b-b

-->