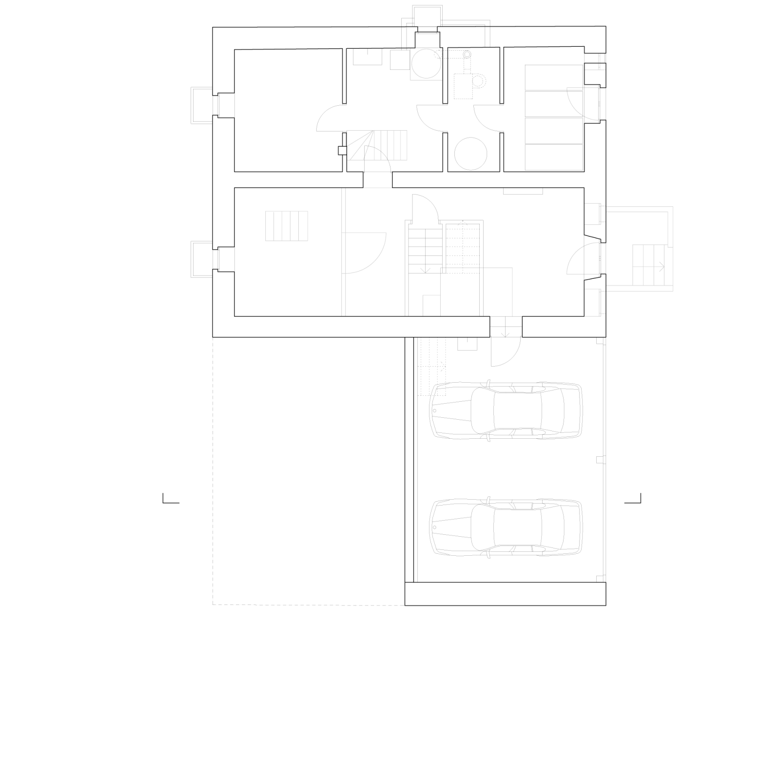
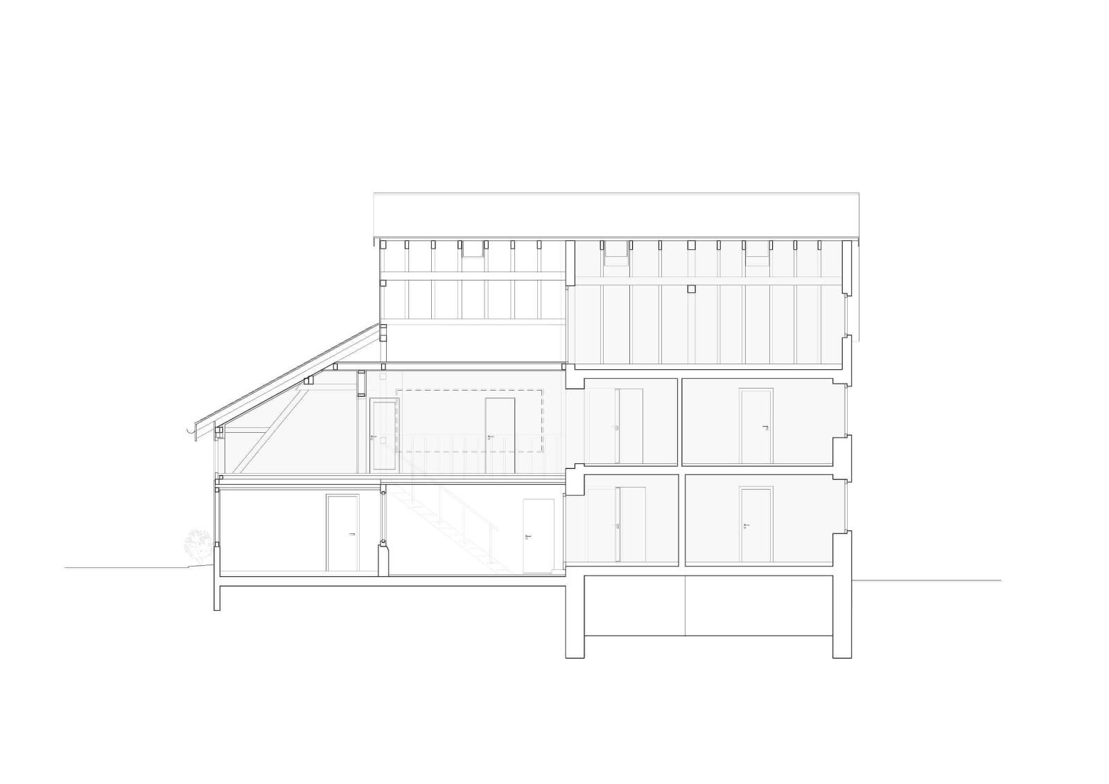
Im Basler Wohnquartier Bachletten, eingegliedert in eine Reihenhäuserzeile aus dem frühen 20. Jahrhundert, befindet sich das dreigeschossige Wohnhaus. Für die neuen Besitzer galt es, das ursprünglich von bis zu drei Parteien bewohnte Haus zu einer Wohneinheit zusammenzuführen. Der flexibel nutzbare Studiobereich im Erdgeschoss bildet eine Ergänzungsfläche zu dem Wohnbereich in den oberen Geschossen. Der für Altbauten typisch kleinteilige Grundriss wurde gezielt geöffnet und das innenliegende Treppenhaus in die Einheiten integriert.
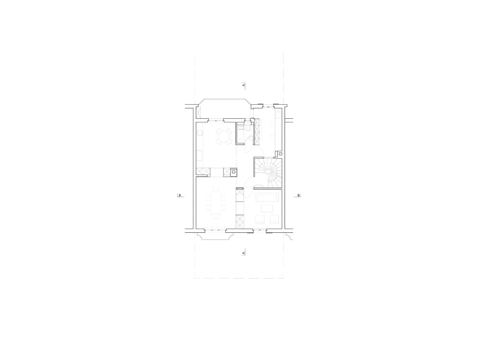
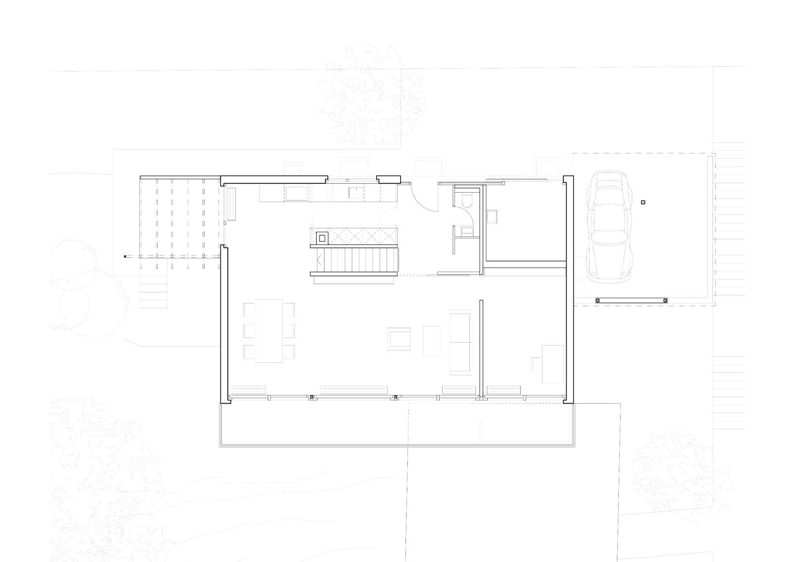
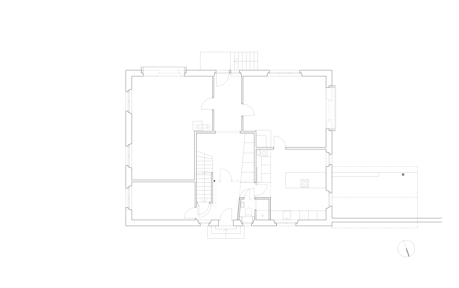
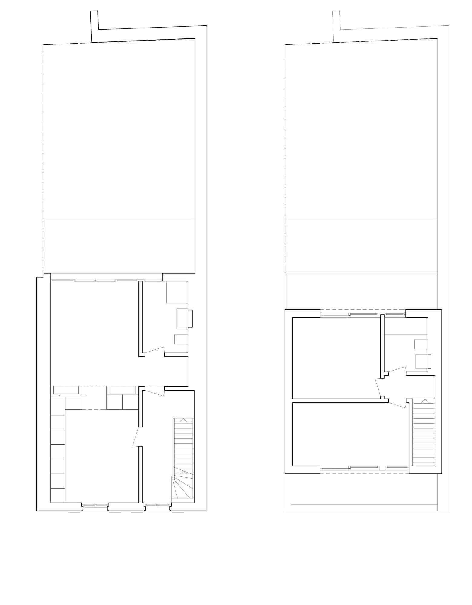
Gleich im Erdgeschoss weicht der schlanke Treppenhausflur einem grosszügigen Eingangsbereich mit freistehender Garderobe. Dieser Bereich dient als Verteiler zwischen der flexiblen Erdgeschossnutzung und den Hauptwohnräumen. Die zwei grossen Zimmer im Erdgeschoss sind über Schiebetüren frei kombinierbar. Das modernisierte Duschbad und die kompakte Teeküche vervollständigen diese Einheit. Direkt zur Treppe gelangt man über eine raumhohe Pendeltüre. Diese findet sich in jedem Geschoss wieder und vereint die Räume mit dem Treppenraum.
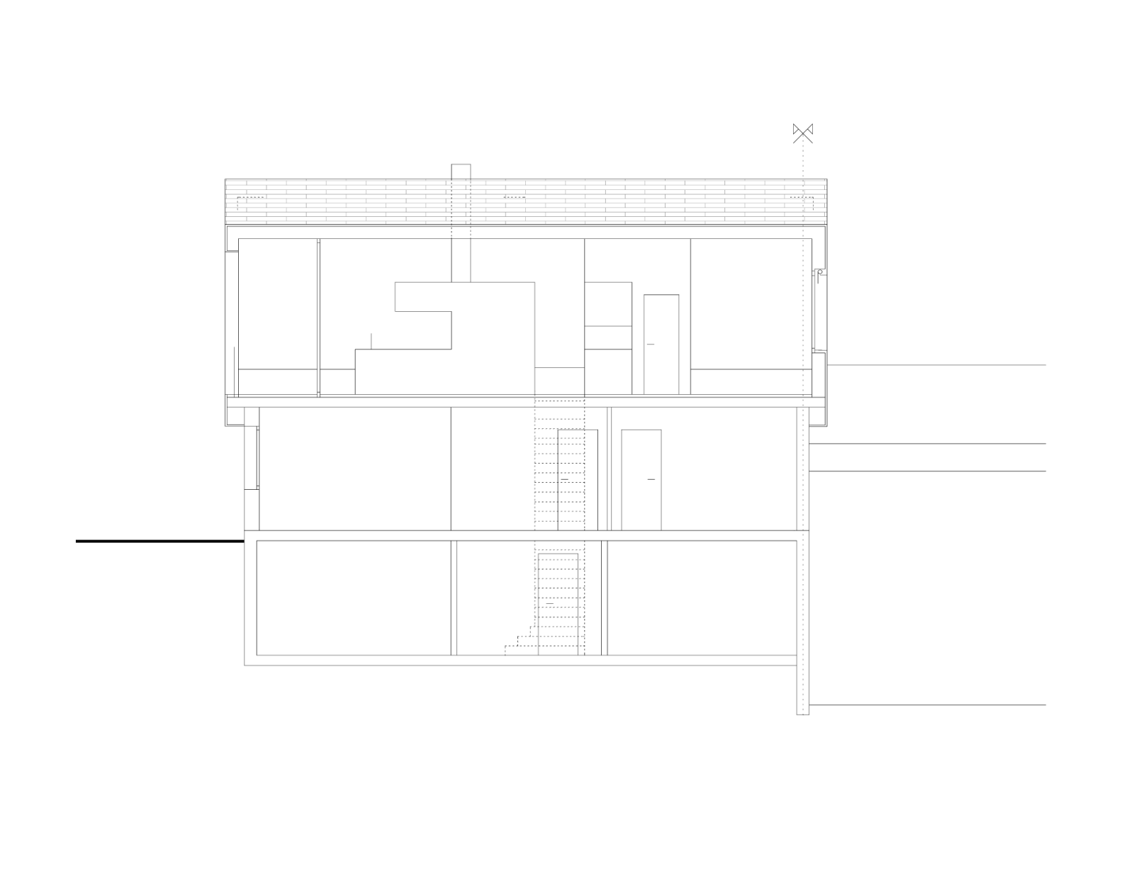
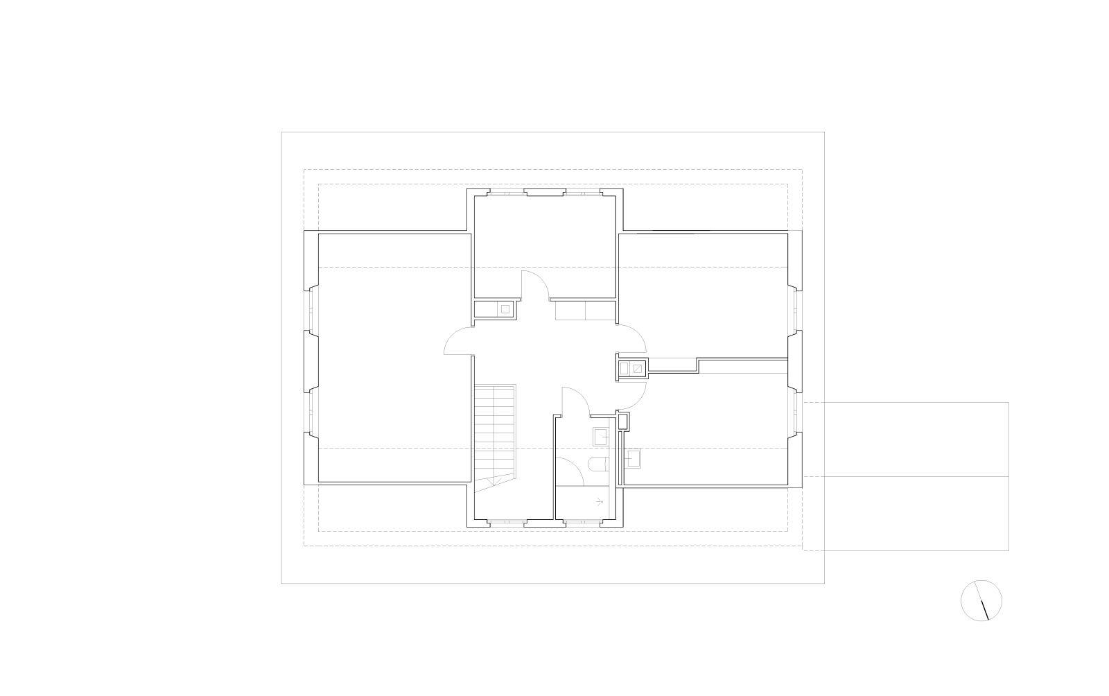
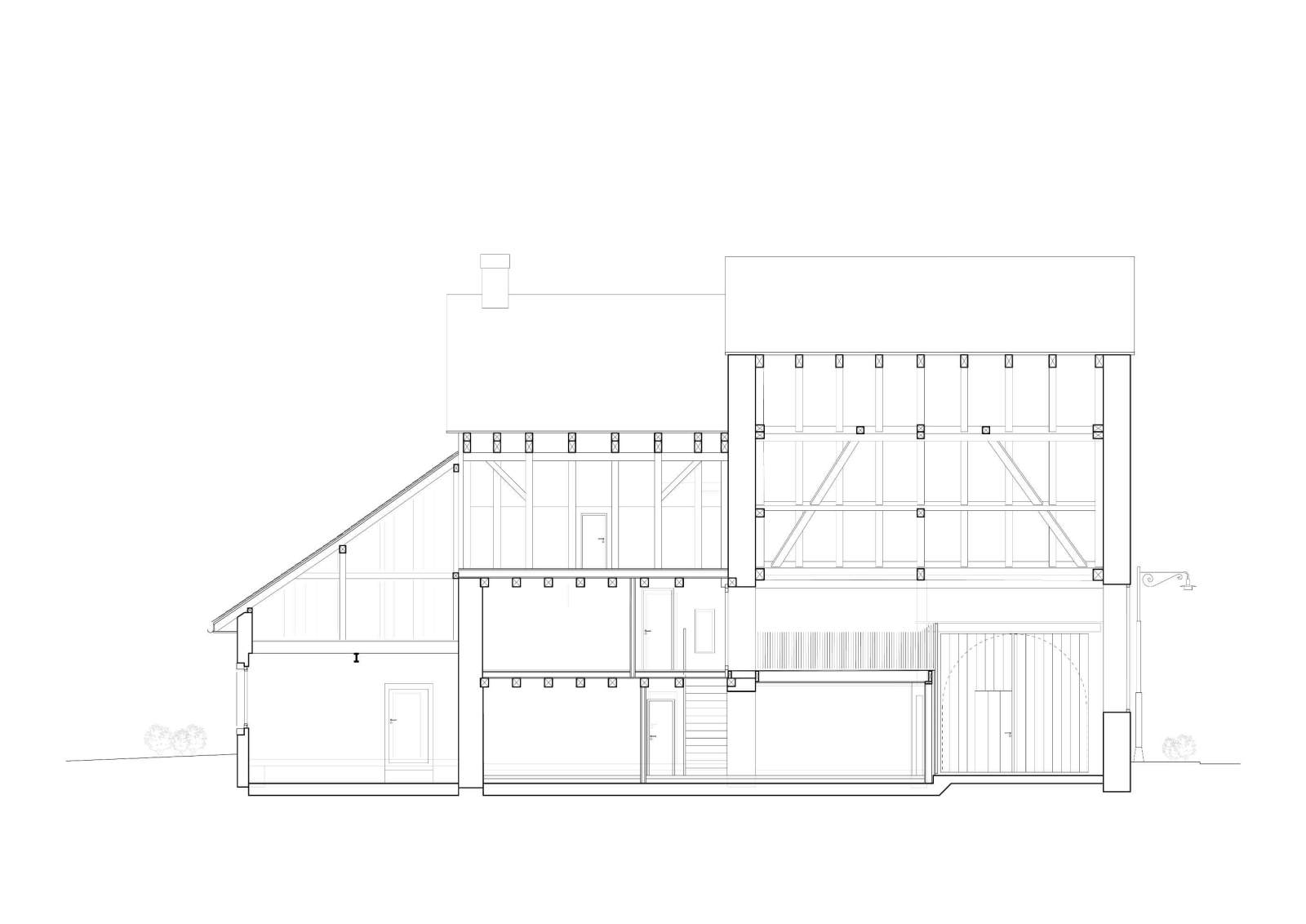
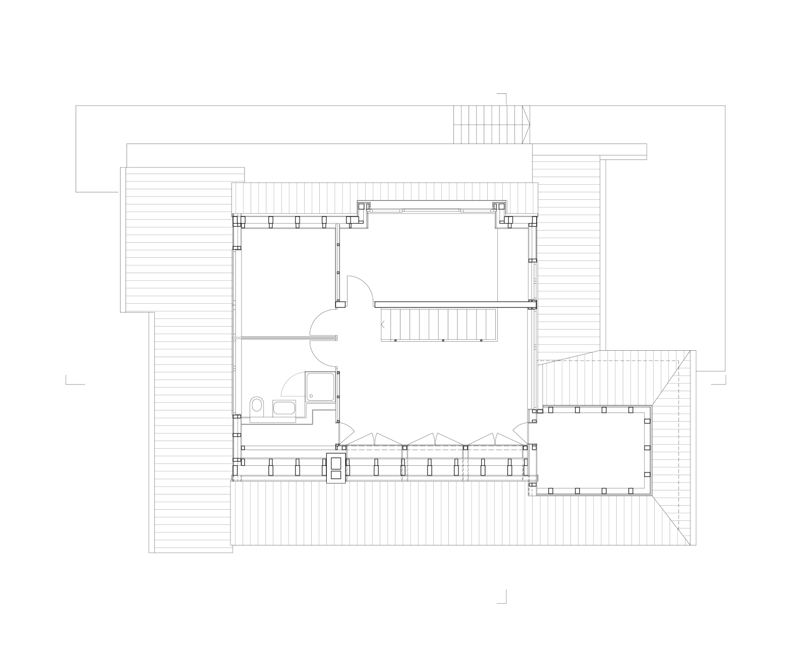
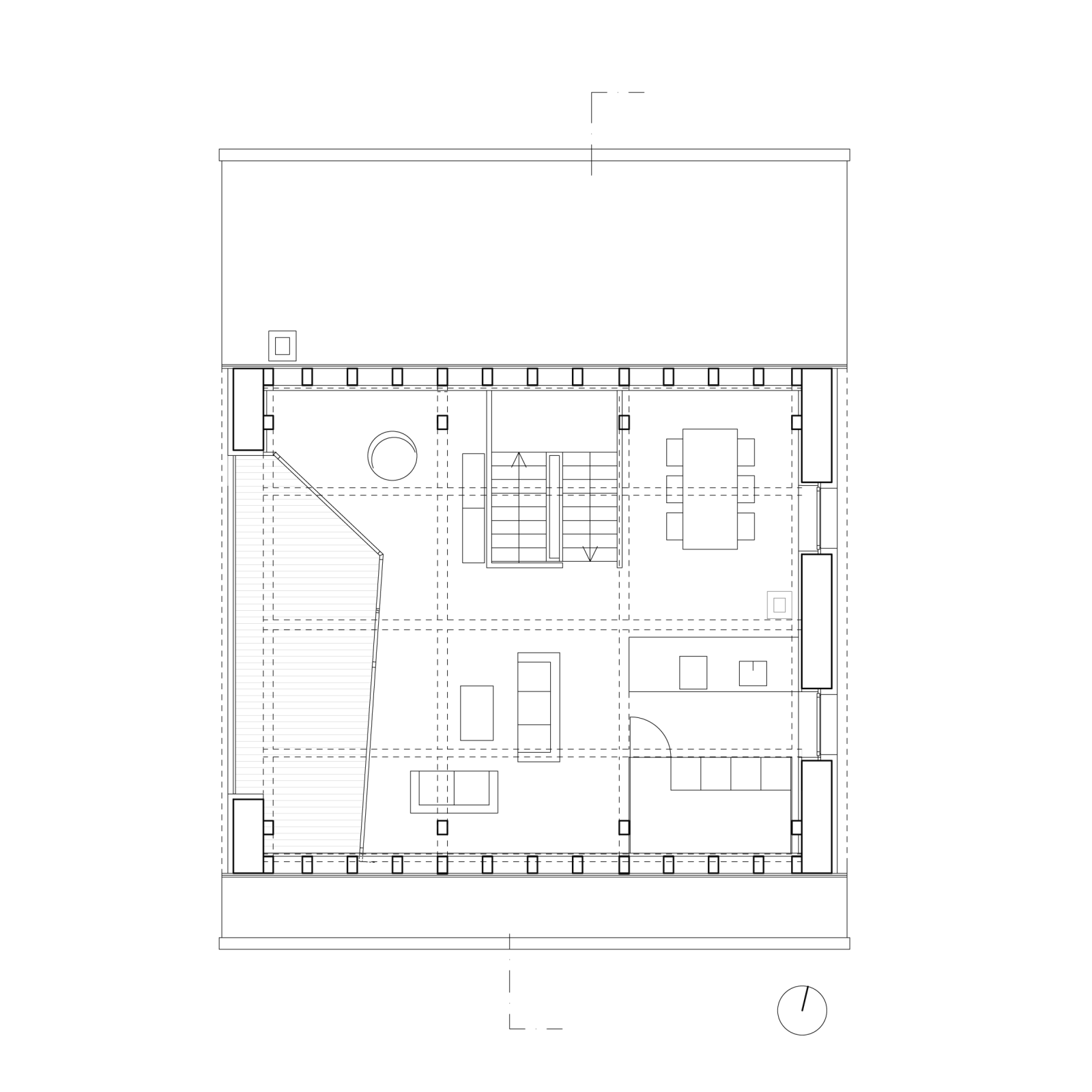
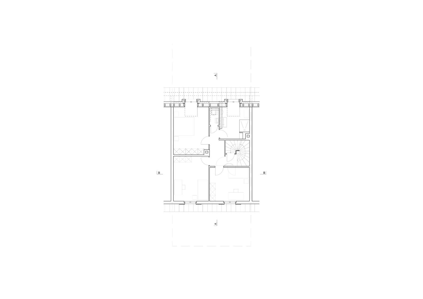
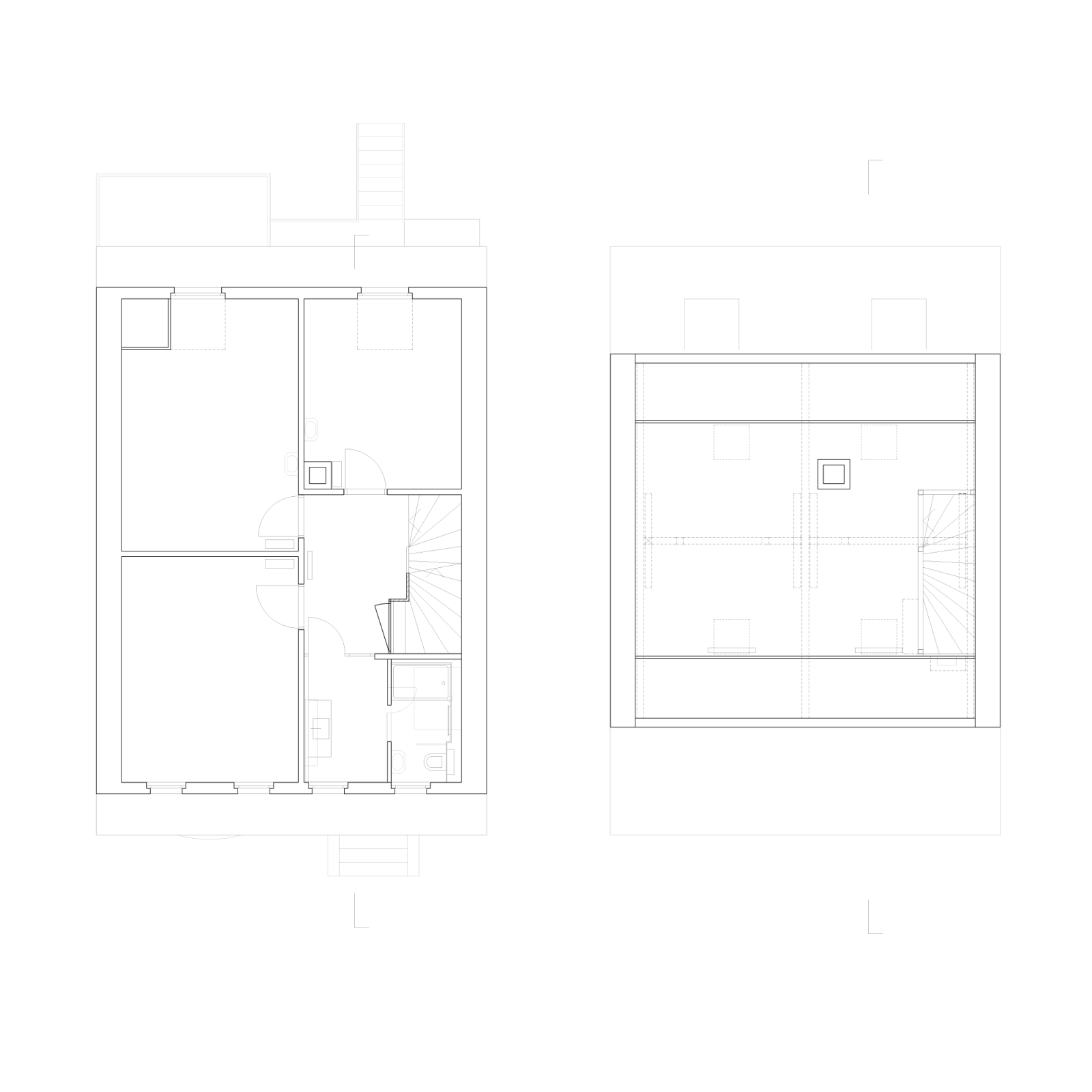
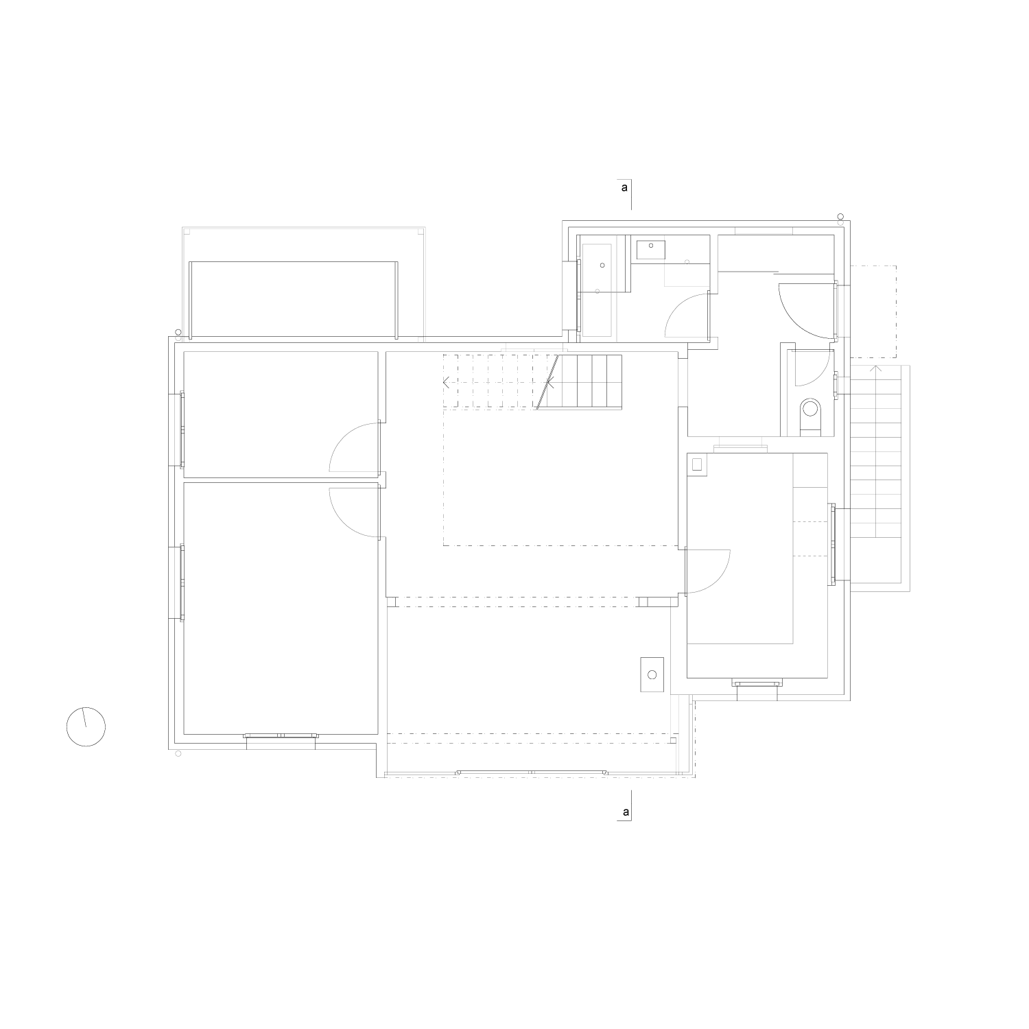
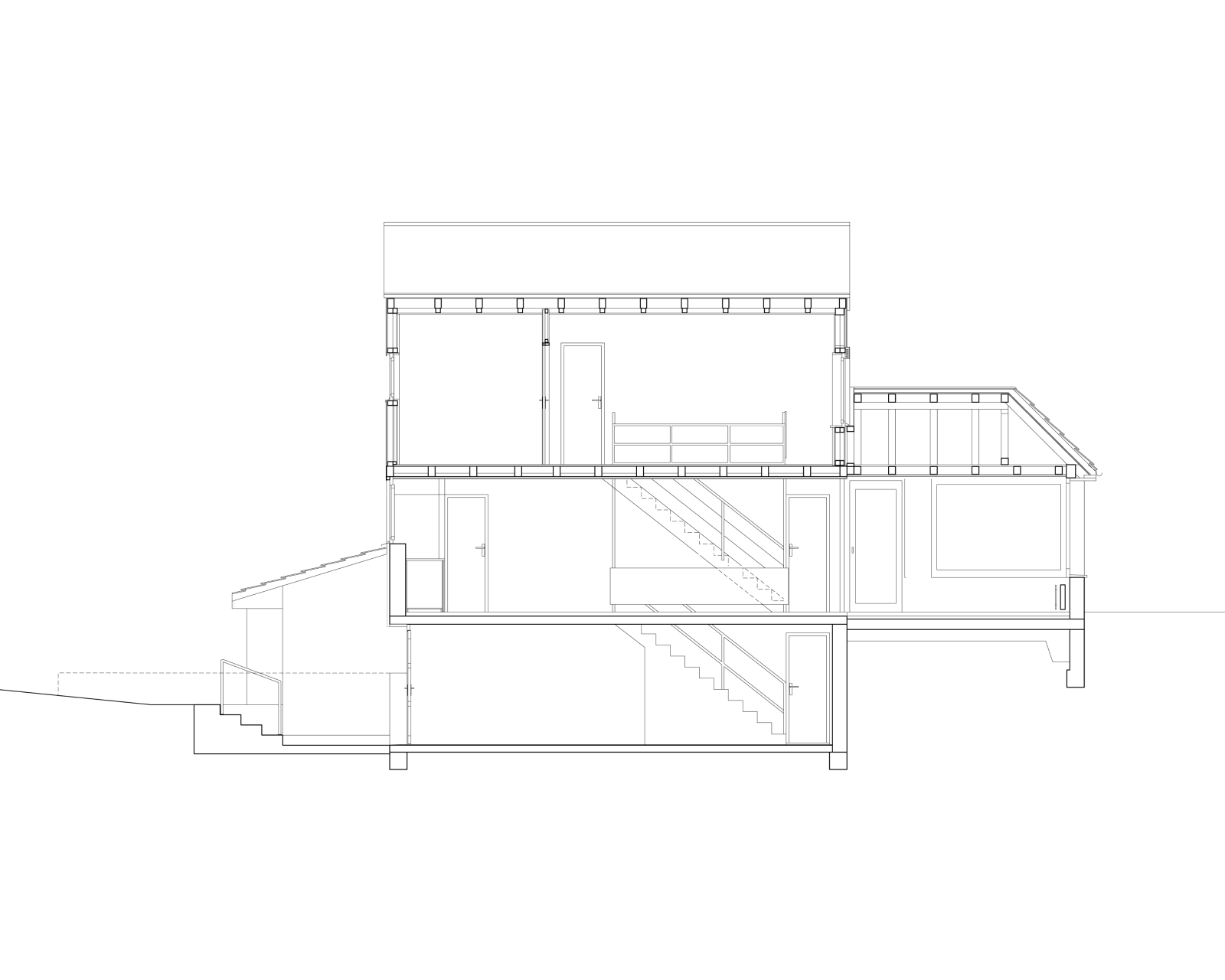
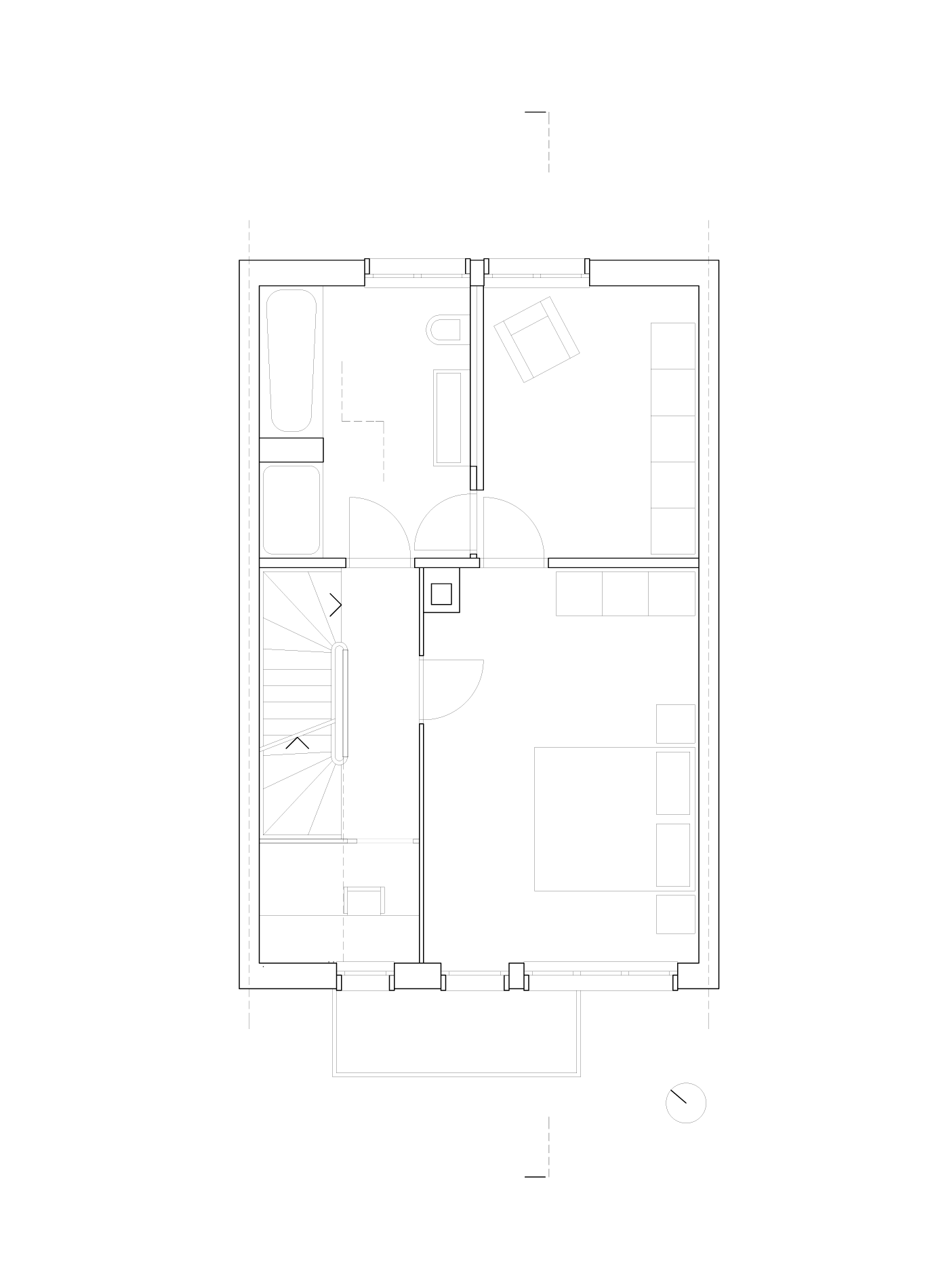
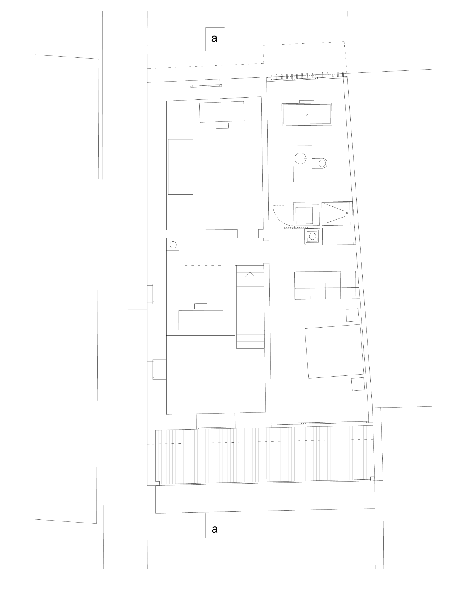
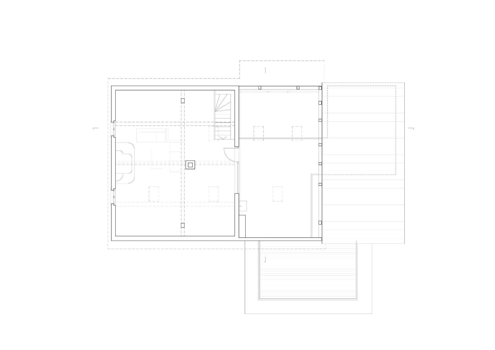
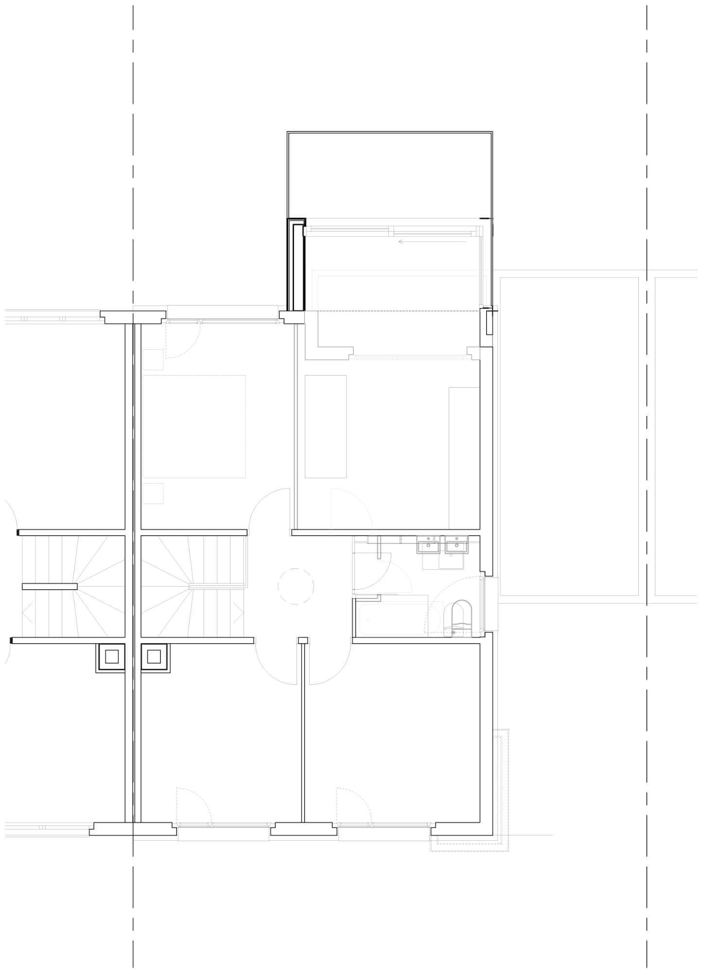
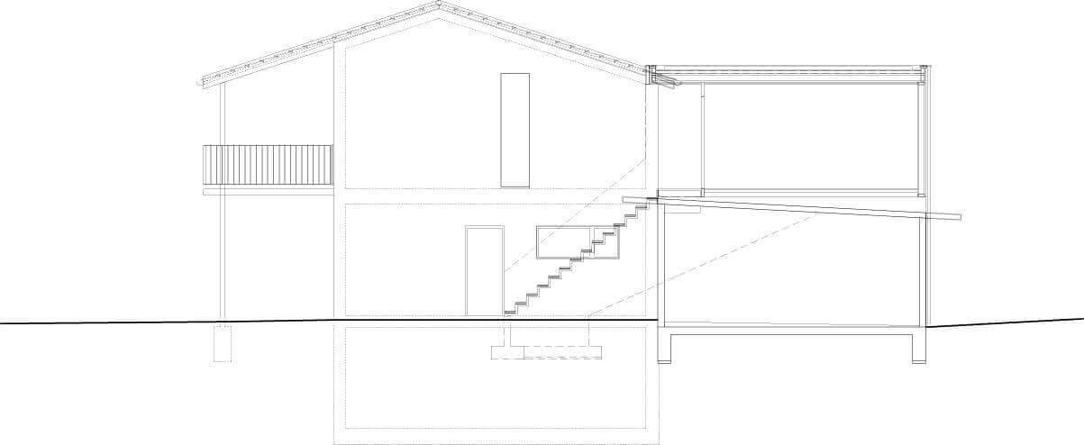
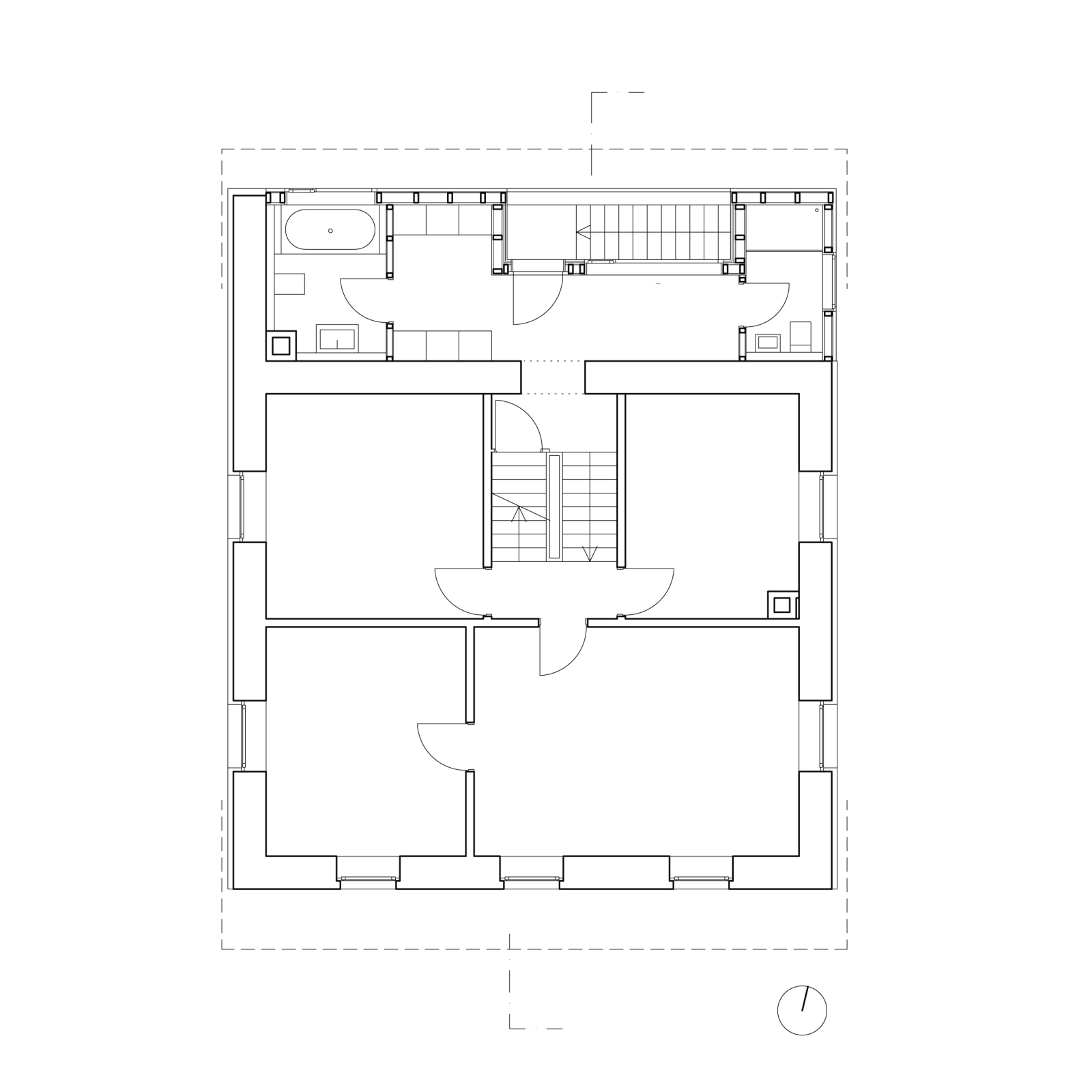
Die grössten Eingriffe erfährt das 1. Obergeschoss. Zugunsten einer grosszügigen Raumwirkung wird die Grundrissstruktur maximal aufgelöst und notwendige Wandabschnitte in raumbildende Körper integriert. Diese gliedern Küche, Wohn- und Arbeitsbereich. Das 2. Obergeschoss mit den Schlafräumen bleibt kleinteilig und erfährt bis auf die Öffnung zum Treppenraum kaum substantielle Eingriffe. Der ehemalige Estrich erhält zwei neue Dachfester und bietet den Kindern eine erweiterte Spielfläche. Um das ursprüngliche Fassadenbild zu erhalten, wurde lediglich das Dach saniert und alle Fenster ersetzt. Eine Photovoltaikanlage auf der südlichen Dachfläche ergänzt das energetische Konzept. Die haustechnischen Anlagen wurden modernisiert.



















































































































































































































